Токарная работа ролик 6шт
- den_sibirskiy
- Мастер
- Сообщения: 1655
- Зарегистрирован: 12 апр 2014, 17:04
- Репутация: 349
- Настоящее имя: Ден
- Откуда: Иркутск
- Контактная информация:
Токарная работа ролик 6шт
Приветствую ребята!
Нужно изготовить ролики 6 может 8штук.
По материалу не подскажу, не разбираюсь, мне видится любая сталь с твердостью 55 может 60 ед. - этот выбор оставлю профессионалам.
Знаю что должны быть твердые, т.к. это лезвия для резки листового металла ,подоконники на окнах.
Модель солид воркс и фото https://yadi.sk/d/h1VWScem35epzQ
Деталь вроде простая и в то же время не совсем. С внутренней стороны выборка под конус еле заметная, правда где край там нет выборки, 6 миллиметров ровная поверхность.
Нужно изготовить ролики 6 может 8штук.
По материалу не подскажу, не разбираюсь, мне видится любая сталь с твердостью 55 может 60 ед. - этот выбор оставлю профессионалам.
Знаю что должны быть твердые, т.к. это лезвия для резки листового металла ,подоконники на окнах.
Модель солид воркс и фото https://yadi.sk/d/h1VWScem35epzQ
Деталь вроде простая и в то же время не совсем. С внутренней стороны выборка под конус еле заметная, правда где край там нет выборки, 6 миллиметров ровная поверхность.
Последний раз редактировалось den_sibirskiy 29 дек 2016, 08:58, всего редактировалось 1 раз.
"Хватит спать пора начинать пришло твое время"
-
Jek-66
- Мастер
- Сообщения: 257
- Зарегистрирован: 26 апр 2016, 07:21
- Репутация: 66
- Настоящее имя: Кораблин Евгений Николаевич
- Откуда: г. Воронеж, blincar66@ mail.ru
- Контактная информация:
Re: Токарная работа ролик 6шт
Да, задачку вы задали не из простых! Тут сталь 40Х не хуже понадобится. С последующей закалкой и шлифовкой режущей грани. А где ее 40Х взять то нормальную? Все жалуются что "теперешняя" 40Х калится в воду только до 40-45 ед. Видимо качество придется заменить количеством.. .Делайте пар 10 роликов сразу. 
С уважением
С уважением
- den_sibirskiy
- Мастер
- Сообщения: 1655
- Зарегистрирован: 12 апр 2014, 17:04
- Репутация: 349
- Настоящее имя: Ден
- Откуда: Иркутск
- Контактная информация:
Re: Токарная работа ролик 6шт
Еще бы цену понимать, а то назаказываешь. 40Х хорошая сталь - мне то точно не принципиально, можно же и не хромистую наверно, сталей мало таких твердых?? Я то не в теме - так краткий курс материаловедения прошел и все. Насчет шлифовки, да возможно и надо, термообработку точно придется делать. В общем я учить не буду ни кого, я не компитентен в таких вопросах.
"Хватит спать пора начинать пришло твое время"
- Карабас
- Мастер
- Сообщения: 1862
- Зарегистрирован: 02 мар 2016, 06:53
- Репутация: 690
- Контактная информация:
Re: Токарная работа ролик 6шт
Нахрена? У8 для таких дел.Jek-66 писал(а):Тут сталь 40Х не хуже понадобится.
Если на минусы жизни смотреть сквозь поднятый средний палец, то они становятся плюсами.
- Rom327
- Почётный участник

- Сообщения: 2989
- Зарегистрирован: 03 апр 2015, 13:23
- Репутация: 437
- Настоящее имя: Роман
- Откуда: Подольск
- Контактная информация:
Re: Токарная работа ролик 6шт
den_sibirskiy!
Я гляжу вы водоотливы режете? Мы в свое время такие диски периодически подтачивали снаружи на пару десяток. Зажимали на болт подшипник и в точило. На какое то время хватало. Очень сильно помогает продлить жизнь дискам нанесение силиконовой смазки в пятно контакта дисков. Пару пшиков - десяток резов...
Я гляжу вы водоотливы режете? Мы в свое время такие диски периодически подтачивали снаружи на пару десяток. Зажимали на болт подшипник и в точило. На какое то время хватало. Очень сильно помогает продлить жизнь дискам нанесение силиконовой смазки в пятно контакта дисков. Пару пшиков - десяток резов...
Это сугубо мое мнение, могу и ошибаться...
https://vk.com/rom327
GRBL настройки: http://blogandbux.blogspot.com/2018/07/ ... revod.html
G коды: http://3d-stanki.ru/spravochnik/program ... stankov-2/
https://vk.com/rom327
GRBL настройки: http://blogandbux.blogspot.com/2018/07/ ... revod.html
G коды: http://3d-stanki.ru/spravochnik/program ... stankov-2/
- den_sibirskiy
- Мастер
- Сообщения: 1655
- Зарегистрирован: 12 апр 2014, 17:04
- Репутация: 349
- Настоящее имя: Ден
- Откуда: Иркутск
- Контактная информация:
Re: Токарная работа ролик 6шт
Мы сейчас с другого сняли, со старого, на точиле не выход.Rom327 писал(а):den_sibirskiy!
Я гляжу вы водоотливы режете? Мы в свое время такие диски периодически подтачивали снаружи на пару десяток. Зажимали на болт подшипник и в точило. На какое то время хватало. Очень сильно помогает продлить жизнь дискам нанесение силиконовой смазки в пятно контакта дисков. Пару пшиков - десяток резов...
"Хватит спать пора начинать пришло твое время"
- den_sibirskiy
- Мастер
- Сообщения: 1655
- Зарегистрирован: 12 апр 2014, 17:04
- Репутация: 349
- Настоящее имя: Ден
- Откуда: Иркутск
- Контактная информация:
Re: Токарная работа ролик 6шт
Ребятки, я думал у нас токарной обработки больше на сайте, не на авито же заказывать, лучше своим, своим доверяю.
Эхх, развалили у нас все заводы, даже толком заказывать негде, ЧПУ обработки в городе вообще не встречал, разве что плазму промышленную, здоровущую на Усольмаше.
Эхх, развалили у нас все заводы, даже толком заказывать негде, ЧПУ обработки в городе вообще не встречал, разве что плазму промышленную, здоровущую на Усольмаше.
"Хватит спать пора начинать пришло твое время"
-
aftaev
- Зачётный участник

- Сообщения: 34042
- Зарегистрирован: 04 апр 2010, 19:22
- Репутация: 6194
- Откуда: Казахстан.
- Контактная информация:
Re: Токарная работа ролик 6шт
Здесь дело не в токарке, это тебе любой токарь выточит. Нужно купить сталюку углеродистую чтоб калилось, вырезать, закалить(найти режимы закалкиотпуска под эту сталь), отпустить, шлифануть.den_sibirskiy писал(а):Ребятки, я думал у нас токарной обработки больше на сайте, не на авито же заказывать, лучше своим, своим доверяю.
Дилетанту сложные вещи кажутся очень простыми, и только профессионал понимает насколько сложна самая простая вещь
Кто хочет - ищет возможности, кто не хочет - ищет оправдание.
Найди работу по душе и тебе не придется работать.
Кто хочет - ищет возможности, кто не хочет - ищет оправдание.
Найди работу по душе и тебе не придется работать.
- den_sibirskiy
- Мастер
- Сообщения: 1655
- Зарегистрирован: 12 апр 2014, 17:04
- Репутация: 349
- Настоящее имя: Ден
- Откуда: Иркутск
- Контактная информация:
Re: Токарная работа ролик 6шт
Так в том и дело, яж не знаю всех сталей у кого что есть и как их закалять, или обрабатывать, оставляю выбор за предоставляющим услугу, ему виднее, только просьба не г.., за остальное я только за.
"Хватит спать пора начинать пришло твое время"
-
Duhas
- Мастер
- Сообщения: 1961
- Зарегистрирован: 10 окт 2015, 23:25
- Репутация: 285
- Настоящее имя: Андрей
- Откуда: Красноярск
- Контактная информация:
Re: Токарная работа ролик 6шт
проблема я думаю еще и в отсутстии ТЗ в целом, нужен какой то ролик с какой то твердостью какой то формы. чертеж и характеристики нужны для начала.
- Rom327
- Почётный участник

- Сообщения: 2989
- Зарегистрирован: 03 апр 2015, 13:23
- Репутация: 437
- Настоящее имя: Роман
- Откуда: Подольск
- Контактная информация:
Re: Токарная работа ролик 6шт
Новый нож в сборе стоит 50тыр. 2 режика к нему 33тыр. Направляющие ролики 6 тыр. Самое дешевое заточка. ИМХО
Это сугубо мое мнение, могу и ошибаться...
https://vk.com/rom327
GRBL настройки: http://blogandbux.blogspot.com/2018/07/ ... revod.html
G коды: http://3d-stanki.ru/spravochnik/program ... stankov-2/
https://vk.com/rom327
GRBL настройки: http://blogandbux.blogspot.com/2018/07/ ... revod.html
G коды: http://3d-stanki.ru/spravochnik/program ... stankov-2/
- den_sibirskiy
- Мастер
- Сообщения: 1655
- Зарегистрирован: 12 апр 2014, 17:04
- Репутация: 349
- Настоящее имя: Ден
- Откуда: Иркутск
- Контактная информация:
Re: Токарная работа ролик 6шт
Не верю что выточить новые хоть рядом столько же стоит. Хорошо, предположим хотя бы в пять раз дешевле, это уже 3300 за ролик, что не реально за эту сумму по ролику делать? Ну за пять? За сколько?
За место чертежа я модель в солидворксе вылаживал, можно еще раз она в папке с фото просто https://yadi.sk/d/5OxuKg76362Gtm
На ебей за 20 - 25 можно в сборе купить кстати.
Хорошо, отступим от темы, как их заточить? Мне видится что только на плоскошлифе, выход ли это, разве так же ровно получится что и на токарнике новый? Сомневаюсь.
За место чертежа я модель в солидворксе вылаживал, можно еще раз она в папке с фото просто https://yadi.sk/d/5OxuKg76362Gtm
На ебей за 20 - 25 можно в сборе купить кстати.
Хорошо, отступим от темы, как их заточить? Мне видится что только на плоскошлифе, выход ли это, разве так же ровно получится что и на токарнике новый? Сомневаюсь.
"Хватит спать пора начинать пришло твое время"
- den_sibirskiy
- Мастер
- Сообщения: 1655
- Зарегистрирован: 12 апр 2014, 17:04
- Репутация: 349
- Настоящее имя: Ден
- Откуда: Иркутск
- Контактная информация:
Re: Токарная работа ролик 6шт
Вечно когда что то надо, приходится договариваться по неделе и обжевывать непонятно что, все понимаю, но почему всегда так, даже срочно надо будет ,бам стена. Вроде не самолет строю, цену не диктую, дешево не предлагаю, не нравится мне это, спрошу кто профессионально занимается, может кого найду оперативно решающего такие вопросы, на будущее же тоже ищу, это оно сейчас не горит.
"Хватит спать пора начинать пришло твое время"
-
aftaev
- Зачётный участник

- Сообщения: 34042
- Зарегистрирован: 04 апр 2010, 19:22
- Репутация: 6194
- Откуда: Казахстан.
- Контактная информация:
Re: Токарная работа ролик 6шт
за 5000руб за один ролик думаю можно сделать, особенно если их будет кучкаden_sibirskiy писал(а):Хорошо, предположим хотя бы в пять раз дешевле, это уже 3300 за ролик, что не реально за эту сумму по ролику делать? Ну за пять? За сколько?
den_sibirskiy, когда показывают деталь/чертеж то многие с опытом прикидывают сколько времени ее нужно сделать и как. Но не знают ее реальную стоимость. Допустим тебе скажут 5000руб/ролик - ты скажешь что с дуба рухнул, вон китайский 500руб стоить. Тот кто их массой гонит там и цена другая. Поэтому многие даже не связываются. Но если сказать вот новый стоит 10000руб, для меня это дороговато, мож кто дешевше сделает это другое дело.den_sibirskiy писал(а):Вечно когда что то надо, приходится договариваться по неделе и обжевывать непонятно что, все понимаю, но почему всегда так, даже срочно надо будет ,бам стена.
Дилетанту сложные вещи кажутся очень простыми, и только профессионал понимает насколько сложна самая простая вещь
Кто хочет - ищет возможности, кто не хочет - ищет оправдание.
Найди работу по душе и тебе не придется работать.
Кто хочет - ищет возможности, кто не хочет - ищет оправдание.
Найди работу по душе и тебе не придется работать.
- den_sibirskiy
- Мастер
- Сообщения: 1655
- Зарегистрирован: 12 апр 2014, 17:04
- Репутация: 349
- Настоящее имя: Ден
- Откуда: Иркутск
- Контактная информация:
Re: Токарная работа ролик 6шт
мне интересно если 6 штук за 20тр.
"Хватит спать пора начинать пришло твое время"
-
aftaev
- Зачётный участник

- Сообщения: 34042
- Зарегистрирован: 04 апр 2010, 19:22
- Репутация: 6194
- Откуда: Казахстан.
- Контактная информация:
Re: Токарная работа ролик 6шт
Подшип как должен садиться?
Дилетанту сложные вещи кажутся очень простыми, и только профессионал понимает насколько сложна самая простая вещь
Кто хочет - ищет возможности, кто не хочет - ищет оправдание.
Найди работу по душе и тебе не придется работать.
Кто хочет - ищет возможности, кто не хочет - ищет оправдание.
Найди работу по душе и тебе не придется работать.
- den_sibirskiy
- Мастер
- Сообщения: 1655
- Зарегистрирован: 12 апр 2014, 17:04
- Репутация: 349
- Настоящее имя: Ден
- Откуда: Иркутск
- Контактная информация:
Re: Токарная работа ролик 6шт
Ну он немного запресован, без фанатизма, спокойно выколачивается, в допусках не ориентируюсь.
"Хватит спать пора начинать пришло твое время"
-
aftaev
- Зачётный участник

- Сообщения: 34042
- Зарегистрирован: 04 апр 2010, 19:22
- Репутация: 6194
- Откуда: Казахстан.
- Контактная информация:
Re: Токарная работа ролик 6шт
В dxf сохрани. Солид 2012 не открывает твой файл
И номер подшипа напиши.
Дилетанту сложные вещи кажутся очень простыми, и только профессионал понимает насколько сложна самая простая вещь
Кто хочет - ищет возможности, кто не хочет - ищет оправдание.
Найди работу по душе и тебе не придется работать.
Кто хочет - ищет возможности, кто не хочет - ищет оправдание.
Найди работу по душе и тебе не придется работать.
- den_sibirskiy
- Мастер
- Сообщения: 1655
- Зарегистрирован: 12 апр 2014, 17:04
- Репутация: 349
- Настоящее имя: Ден
- Откуда: Иркутск
- Контактная информация:
Re: Токарная работа ролик 6шт
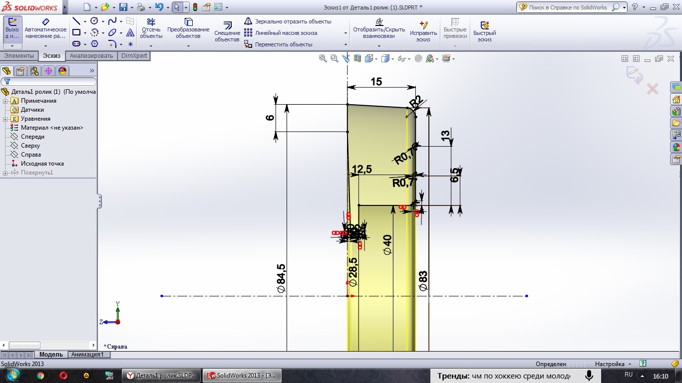
Попробовал создать чертеж детали, он мне сначала билеберду писал всякую, вроде разобрался, но из-за фасок он мне некоторые размеры не правильно отчитывал, в общем размеры фасок смотрите на скринах, в дхф размеры не все.
- Вложения
-
- Деталь1 ролик (1).DXF
- (132.08 КБ) 986 скачиваний
"Хватит спать пора начинать пришло твое время"