Фрезерный по дереву 2000х1000 - проект

Фрезерные и гравировальные станки для обработки мягких материалов (дерево, пластики, мягкие металлы).
klbng
Кандидат
Сообщения: 92
Зарегистрирован: 30 сен 2014, 14:13
Репутация: 5
Настоящее имя: Вадим
Контактная информация:

Фрезерный по дереву 2000х1000 - проект

Сообщение klbng »

Описание станка, основные характеристики: станок для раскроя, V-гравировки и изредка несложных рельефов на дереве (двери, фасады)
Рабочее поле: 2000х1000
Обрабатываемые материалы: фанера, деревянный массив разных пород

Планируется станок для раскроя и простой гравировки деревянных изделий. Рама вся сварная из профиля 60х80х3мм, делается сейчас на заводе с последующей фрезеровкой под направляющие. По осям X и Y будут прямозубые зубчатые рейки 15х20мм м1.5, на длинной оси два двигателя и две рейки. Шестерни для реек уже есть на 30 зубов, от двигателей будет ременной редуктор 1/5. На оси Z будет ШВП 1605 напрямую муфтой от двигателя (нужен ли редуктор?) С двигателями пока точно не определился, планирую получить подачи до 10м/мин. Управление - Mach3 с какой-нибудь простенькой ЛПТ платой.
Теперь вопросы к участникам форума:
1. Есть в наличии цилиндрические рельсы SBR20 длиной 300, 1200 и 2500. Подойдут ли они для моих целей? Если смотреть в сторону хивинов - какие мне понадобятся и понадобятся ли вообще?
2. Есть также в наличии китайский шпиндель с водяным охлаждением 1.5квт с цангой ЕР11 - хватит ли мощи?
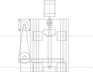
3. Насколько жизнеспособна рама станка? (скриншоты ниже) Нужно ли облегчать портал и делать его из алюминиевого станочного профиля или пойдет фрезерованный стальной из металлопроката? Портал будет практически "безногим", лежать будет непосредственно на направляющих. Большая высота мне не нужна.
4. Какие посоветуете ставить моторы, драйверы, питание?
Спасибо. Буду по ходу работы выкладывать наработки и задавать появляющиеся вопросы :)
изометрия.JPG (3180 просмотров) <a class='original' href='./download/file.php?id=85659&mode=view' target=_blank>Загрузить оригинал (89.04 КБ)</a>
перед.JPG (3180 просмотров) <a class='original' href='./download/file.php?id=85660&mode=view' target=_blank>Загрузить оригинал (25.31 КБ)</a>
бок.JPG (3180 просмотров) <a class='original' href='./download/file.php?id=85658&mode=view' target=_blank>Загрузить оригинал (28.38 КБ)</a>
Аватара пользователя
Taganrog
Мастер
Сообщения: 1238
Зарегистрирован: 15 апр 2015, 16:32
Репутация: 284
Настоящее имя: Евгений
Откуда: Брянск
Контактная информация:

Re: Фрезерный по дереву 2000х1000 - проект

Сообщение Taganrog »

klbng писал(а):1. Есть в наличии цилиндрические рельсы SBR20 длиной 300, 1200 и 2500.
Если не надеяться попадать в сотку должно хватить. только выставить их геморойно.
klbng писал(а):2. Есть также в наличии китайский шпиндель с водяным охлаждением 1.5квт с цангой ЕР11 - хватит ли мощи?
er11 мало. там максимально рекомендованный хвостовик 7мм. А вам захочется когда-нибудь поработать фасонными фрезами.хвостовик у многих из них 8мм .
по движкам все упирается в бюджет.
klbng
Кандидат
Сообщения: 92
Зарегистрирован: 30 сен 2014, 14:13
Репутация: 5
Настоящее имя: Вадим
Контактная информация:

Re: Фрезерный по дереву 2000х1000 - проект

Сообщение klbng »

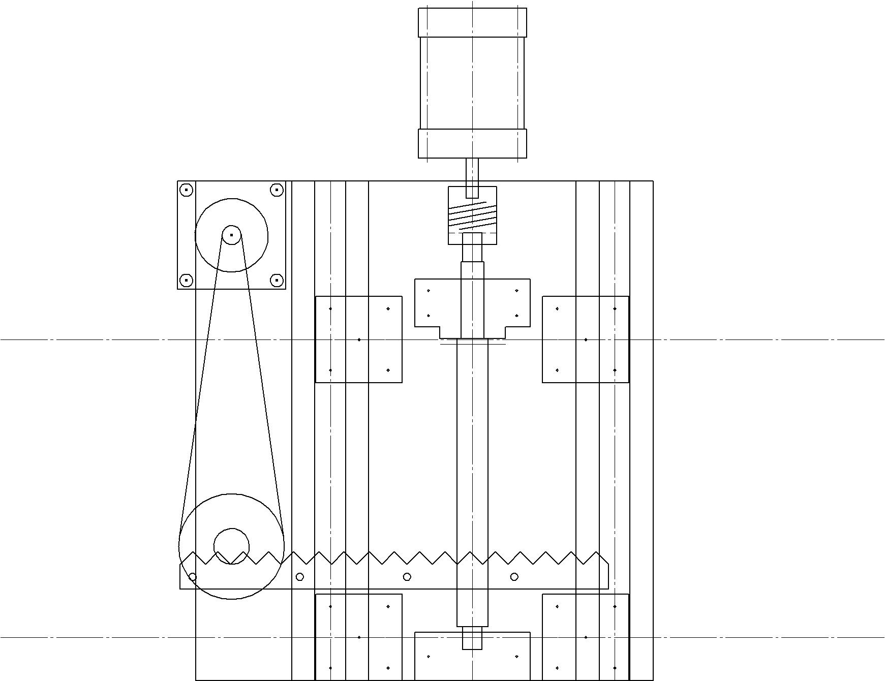
Работа над проектом продолжается. Рама сварена и окрашена. В процессе сборки рамы от наклонных укосин решили отказаться. Почти все комплектующие уже есть. Моторы задержали на таможне из-за предстоящего саммита g20, вернули деньги, перезаказали в России.
Портал и каретка еще не сделаны. Портал будет из двух сваренных профилей 60х80 со стенкой 3мм. Основание портала и косынки по бокам - стальной лист 8мм. Все на сварке. Каретка из алюминиевой плиты 16мм.
1.JPG (3026 просмотров) <a class='original' href='./download/file.php?id=87050&mode=view' target=_blank>Загрузить оригинал (157.94 КБ)</a>
Моторы взяли 34HS9801 - отмечены красным в таблице. Драйверы - CW8060 - 4шт, блоки питания - 48в 400вт - 4шт.
мотор.JPG (3026 просмотров) <a class='original' href='./download/file.php?id=87053&mode=view' target=_blank>Загрузить оригинал (50.52 КБ)</a>
Для движения вдоль стола будет стоять два мотора. Передача - зубчатая рейка м1.5 15х20мм длиной 2 метра. Шестерня на 30 зубов. Редуктор ременной 1:2.5 с замкнутым ремнем HTD 3M длиной 345мм шириной 10мм. Шкив на моторе - 30 зубов, на шестерне - 75 зубов. На картинке зубчатая рейка и шестерни красного цвета.
мотор бок.JPG (3026 просмотров) <a class='original' href='./download/file.php?id=87052&mode=view' target=_blank>Загрузить оригинал (84.79 КБ)</a>
Для движения вдоль портала мотор с аналогичным редуктором. Длина рейки - 1 метр.
моторы каретка.JPG (3026 просмотров) <a class='original' href='./download/file.php?id=87054&mode=view' target=_blank>Загрузить оригинал (160.82 КБ)</a>
По оси Z стоит ШВП 1605х300 тоже с ременной передачей 2:1. На моторе шкив 30 зубов, на ШВП - 15 зубов. Ремень HTD 3M 345х10мм
каретка.JPG (3026 просмотров) <a class='original' href='./download/file.php?id=87051&mode=view' target=_blank>Загрузить оригинал (131.73 КБ)</a>
Высота заготовки над столом - 100мм. Подачи планирую получить - 10м/мин по осям Х и Y.

Советы, замечания, поправки и уместная критика очень приветсвуется :)
Вложения
перед.JPG (3026 просмотров) <a class='original' href='./download/file.php?id=87055&mode=view' target=_blank>Загрузить оригинал (71.29 КБ)</a>
AVK74
Почётный участник
Почётный участник
Сообщения: 1854
Зарегистрирован: 02 июл 2013, 09:03
Репутация: 335
Откуда: Уфа
Контактная информация:

Re: Фрезерный по дереву 2000х1000 - проект

Сообщение AVK74 »

Ставить рельсы в по Y в разных плоскостях не надо.
Рейку нужно перенести вперед и как можно ниже.
А еще лучше вообще поставить ШВП по Y. Вы значительно повысите жесткость станка, при этом будет еще меньше деталей.
Редукторы на ШВП не нужны. Еще упрощается конструкция.
klbng
Кандидат
Сообщения: 92
Зарегистрирован: 30 сен 2014, 14:13
Репутация: 5
Настоящее имя: Вадим
Контактная информация:

Re: Фрезерный по дереву 2000х1000 - проект

Сообщение klbng »

AVK74 писал(а):Ставить рельсы в по Y в разных плоскостях не надо.
Рейку нужно перенести вперед и как можно ниже.
А еще лучше вообще поставить ШВП по Y. Вы значительно повысите жесткость станка, при этом будет еще меньше деталей.
Редукторы на ШВП не нужны. Еще упрощается конструкция.
Честно говоря, у меня нет идей, как перенести рейку зубатую вперед... ШВП исключается, все запчасти уже закуплены. А размещение рельс в разных плоскостях критично или менее предпочтительно просто? Неоднократно видел размещение направляющих именно перпендикулярно друг другу.
Аватара пользователя
Taganrog
Мастер
Сообщения: 1238
Зарегистрирован: 15 апр 2015, 16:32
Репутация: 284
Настоящее имя: Евгений
Откуда: Брянск
Контактная информация:

Re: Фрезерный по дереву 2000х1000 - проект

Сообщение Taganrog »

AVK74 писал(а):Рейку нужно перенести вперед и как можно ниже.
Покажите пожалуйста как именно. Везде натыкаюсь на верхние положение часто даже за пределами обоих направляющих.Вроде так плечо больше и подклинивать должно. Но с кем списывался -говорят все ок. Работал на мультикаме, там тоже рейка сверху. Проблем нет. все ж это не по стали станки.
Вы часто пишете что это ошибка. Вероятно так и есть . Но каков тогда "правильный вариант" ? Чтоб было удобно расположить еще и двигатель который вращает шестерню по рейке ? есть картинка какая ?

П.С. Разве что городить нечто подобное ?
Скриншот 2016-08-17 14.12.29.png (2925 просмотров) <a class='original' href='./download/file.php?id=87100&mode=view' target=_blank>Загрузить оригинал (476.36 КБ)</a>
klbng
Кандидат
Сообщения: 92
Зарегистрирован: 30 сен 2014, 14:13
Репутация: 5
Настоящее имя: Вадим
Контактная информация:

Re: Фрезерный по дереву 2000х1000 - проект

Сообщение klbng »

Taganrog писал(а):
AVK74 писал(а):Рейку нужно перенести вперед и как можно ниже.
Покажите пожалуйста как именно. Везде натыкаюсь на верхние положение часто даже за пределами обоих направляющих.Вроде так плечо больше и подклинивать должно. Но с кем списывался -говорят все ок. Работал на мультикаме, там тоже рейка сверху. Проблем нет. все ж это не по стали станки.
Вы часто пишете что это ошибка. Вероятно так и есть . Но каков тогда "правильный вариант" ? Чтоб было удобно расположить еще и двигатель который вращает шестерню по рейке ? есть картинка какая ?

П.С. Разве что городить нечто подобное ?
Скриншот 2016-08-17 14.12.29.png
В голове мелькает дурная идея развести два профиля друг над другом (касательно моего случая), чтобы вдоль всего портала прорезь шла. А через эту прорезь пропустить вал шестерни. Редуктор и мотор оставить сзади каретки. Но это все лирика и костыли :D
AVK74
Почётный участник
Почётный участник
Сообщения: 1854
Зарегистрирован: 02 июл 2013, 09:03
Репутация: 335
Откуда: Уфа
Контактная информация:

Re: Фрезерный по дереву 2000х1000 - проект

Сообщение AVK74 »

Я когда думал станок на рейках, прикидывал, что шестерню нужно устанавливать немного в стороне от плиты Z (за пределами рельс) двигатель через ременный редуктор выносится вверх.
Но лучше купить ШВП, стоит не так дорого и избавляемся от кучи гемора.
Рейка должна ставиться только тогда,когда других вариантов просто нет.
Перпендикулярные направляющие усложняют конструкцию и снижают жесткость. И то что так многие делают просто показатель технической безграмотности, вот и все.
klbng
Кандидат
Сообщения: 92
Зарегистрирован: 30 сен 2014, 14:13
Репутация: 5
Настоящее имя: Вадим
Контактная информация:

Re: Фрезерный по дереву 2000х1000 - проект

Сообщение klbng »

AVK74 писал(а):Я когда думал станок на рейках, прикидывал, что шестерню нужно устанавливать немного в стороне от плиты Z (за пределами рельс) двигатель через ременный редуктор выносится вверх.
Но лучше купить ШВП, стоит не так дорого и избавляемся от кучи гемора.
Рейка должна ставиться только тогда,когда других вариантов просто нет.
Перпендикулярные направляющие усложняют конструкцию и снижают жесткость. И то что так многие делают просто показатель технической безграмотности, вот и все.
Так все же важно, чтобы место прикладывания силы к каретке было ближе к шпинделю. То есть не так важно, где находится рейка, как важно, в каком месте редуктор крепится к каретке. Если я правильно мыслю, конечно.
И по направляющим в моем случае: вы бы советовали обе рельсы повернуть вперед валами?
Аватара пользователя
Taganrog
Мастер
Сообщения: 1238
Зарегистрирован: 15 апр 2015, 16:32
Репутация: 284
Настоящее имя: Евгений
Откуда: Брянск
Контактная информация:

Re: Фрезерный по дереву 2000х1000 - проект

Сообщение Taganrog »

AVK74 писал(а):И то что так многие делают просто показатель технической безграмотности
Дык негде взять техническую грамотность .Везде где портал в 2 метра применена такая схема. Поискал на эту тему эскиз конструкции- либо это тайна либо такого решения нету.В общем подсмотреть "как надо" не нашел где. Подсобите пожалуйста ? Ставить ШВП на 2метра (в моем случае) не вариант и дорого и провисать/колбасить будет. Так что просьба небольшая: черканите хотя б на листочке как вы видите расположения рейки, шестерни, шагового двигателя. А модельку уж думаю нарисуем в размерах сами. А то общими словами не ясно как должен выглядеть данный узел с вашей точки зрения.
AVK74
Почётный участник
Почётный участник
Сообщения: 1854
Зарегистрирован: 02 июл 2013, 09:03
Репутация: 335
Откуда: Уфа
Контактная информация:

Re: Фрезерный по дереву 2000х1000 - проект

Сообщение AVK74 »

klbng писал(а):И по направляющим в моем случае: вы бы советовали обе рельсы повернуть вперед валами?
Да, именно так.
Taganrog писал(а):Так что просьба небольшая: черканите хотя б на листочке как вы видите расположения рейки, шестерни, шагового двигателя.
Чуть попозжа нарисую.
klbng
Кандидат
Сообщения: 92
Зарегистрирован: 30 сен 2014, 14:13
Репутация: 5
Настоящее имя: Вадим
Контактная информация:

Re: Фрезерный по дереву 2000х1000 - проект

Сообщение klbng »

AVK74 писал(а):
klbng писал(а):И по направляющим в моем случае: вы бы советовали обе рельсы повернуть вперед валами?
Да, именно так.
А не нужно ли в таком случае увеличить высоту профиля портала? а то дюже близко друг к другу получаются рельсы
Аватара пользователя
donvictorio
Мастер
Сообщения: 2457
Зарегистрирован: 11 окт 2012, 16:26
Репутация: 683
Настоящее имя: Виктор
Откуда: Санкт-Петербург
Контактная информация:

Re: Фрезерный по дереву 2000х1000 - проект

Сообщение donvictorio »

цилиндрические рельсы, да ещё с открытой кареткой очень слабо устойчивы к концентричным нагрузкам. чуть даванёшь и её раскрывает как ракушку. и всё бы ничего, но при некоторых видах компоновок (к примеру, как у вас с рейкой), плечо может быть достаточным для того, чтобы конструкцию колбасило и разбивало. попросту - это как подметать веником с длинной ручкой, держа его одной рукой за кончик.
поэтому и предлагают перенести ось привода ближе к точке нагрузки. что касается других подобных конструкций - то оно более-менее работает с профильными рельсами, там нагрузки на порядок больше можно использовать, или при бесконтактном способе обработки (плазма-гидро-газ и тд)
ну и самое большое зло - рейка на деревообрабатывающем станке. сколько их не видел (3 штуки :) ) везде были проблемы с засорами. одному из пользователей такой системы надоело и он приделал возле каждой шестерни воздушную форсунку, чтобы пыль древесную сдувала. шум знатный, но работает. станок китайский.
AVK74
Почётный участник
Почётный участник
Сообщения: 1854
Зарегистрирован: 02 июл 2013, 09:03
Репутация: 335
Откуда: Уфа
Контактная информация:

Re: Фрезерный по дереву 2000х1000 - проект

Сообщение AVK74 »

klbng писал(а):А не нужно ли в таком случае увеличить высоту профиля портала? а то дюже близко друг к другу получаются рельсы
Это само собой всегда хорошо.
klbng
Кандидат
Сообщения: 92
Зарегистрирован: 30 сен 2014, 14:13
Репутация: 5
Настоящее имя: Вадим
Контактная информация:

Re: Фрезерный по дереву 2000х1000 - проект

Сообщение klbng »

donvictorio писал(а):цилиндрические рельсы, да ещё с открытой кареткой очень слабо устойчивы к концентричным нагрузкам. чуть даванёшь и её раскрывает как ракушку. и всё бы ничего, но при некоторых видах компоновок (к примеру, как у вас с рейкой), плечо может быть достаточным для того, чтобы конструкцию колбасило и разбивало. попросту - это как подметать веником с длинной ручкой, держа его одной рукой за кончик.
поэтому и предлагают перенести ось привода ближе к точке нагрузки. что касается других подобных конструкций - то оно более-менее работает с профильными рельсами, там нагрузки на порядок больше можно использовать, или при бесконтактном способе обработки (плазма-гидро-газ и тд)
ну и самое большое зло - рейка на деревообрабатывающем станке. сколько их не видел (3 штуки :) ) везде были проблемы с засорами. одному из пользователей такой системы надоело и он приделал возле каждой шестерни воздушную форсунку, чтобы пыль древесную сдувала. шум знатный, но работает. станок китайский.
Недавно ковырял большой станок, на котором рейки по всем осям и редукторы от движков на шестернях. Бегает уже несколько лет без проблем. ШВП тоже нехило загрязняется.

А по поводу компоновки уже всю голову сломал... Может кто подскажет, как мне все расположить, чтобы это эффективно работало?
И еще вопрос: есть возможность сделать каретку из листов стали 6, 8 или 10мм. Что если вместо алюминия площадку шпинделя, переднюю и заднюю стенку каретки сделать из стали 6мм, а верх и низ из 10мм и в торцах нарезать резьбу для сборки? Или не стоит хитрить и купить дюраль 16мм? (есть в наличии у нас в городе кусок 1200х250х16, стоит 7300р.) Аналогичный вопрос с основанием портала: сварить косынки из 8мм стали или какие-то еще варианты рассмотреть?
В общем, пока рама стоит, и все почти компоненты есть, нужно быстро определиться с порталом и кареткой, чтобы не получить полтонны дорогого убожества в итоге...
Спасибо :)
Аватара пользователя
donvictorio
Мастер
Сообщения: 2457
Зарегистрирован: 11 окт 2012, 16:26
Репутация: 683
Настоящее имя: Виктор
Откуда: Санкт-Петербург
Контактная информация:

Re: Фрезерный по дереву 2000х1000 - проект

Сообщение donvictorio »

у швп хоть пыльник есть, как и у профильных кареток, там сложнее забить. хоть и можно, конечно.
у sbr вообще всё печально в этом плане.

по поводу стали - да, лучше из стали, меньше места занимает. минус только в обработке, так как твёрдость поболее будет. при одинаковом сечении детали сталная будет в 2,5 раза менее упругая ,чем алюминиевая, соответственно менее деформироваться будет.
делайте всё из 10 мм, и рёбер побольше.
AVK74
Почётный участник
Почётный участник
Сообщения: 1854
Зарегистрирован: 02 июл 2013, 09:03
Репутация: 335
Откуда: Уфа
Контактная информация:

Re: Фрезерный по дереву 2000х1000 - проект

Сообщение AVK74 »

Вот примерно так мне представляется Y на рейке:
Фрагмент.jpg (2811 просмотров) <a class='original' href='./download/file.php?id=87116&mode=view' target=_blank>Загрузить оригинал (120.82 КБ)</a>
klbng
Кандидат
Сообщения: 92
Зарегистрирован: 30 сен 2014, 14:13
Репутация: 5
Настоящее имя: Вадим
Контактная информация:

Re: Фрезерный по дереву 2000х1000 - проект

Сообщение klbng »

AVK74 писал(а):Вот примерно так мне представляется Y на рейке:
Фрагмент.jpg
Родилась грандиозная идея! :D
Два профиля портала разношу друг над другом, оставляю между ними 95-100мм. В образовавшуюся нишу упихиваю мотор с редуктором, рейку ставлю вперед прямо над нижней направляющей. Верхнюю направляющую ставлю в одну плоскость с нижней. Получается, что задняя стенка у каретки будет не нужна, что радует. Рельсы и ШВП шпиндельной пластины будут располагаться на одной пластине, что уменьшит вес и увеличит жесткость. Пока не придумал в тонкостях, как реализовать передачу на ШВП, хотелось бы оставить редуктор, но это уже по ходу пьесы... Завтра попроектирую. Благодарю всех за совету и опять же жду здравую критику :)
Аватара пользователя
frezeryga
Почётный участник
Почётный участник
Сообщения: 13713
Зарегистрирован: 18 авг 2013, 16:08
Репутация: 5069
Откуда: Жуковский
Контактная информация:

Re: Фрезерный по дереву 2000х1000 - проект

Сообщение frezeryga »

разносить профиля плохо жесткость теряется. балка должна быть цельная а не рессора из двух отдельных палок.
Аватара пользователя
Taganrog
Мастер
Сообщения: 1238
Зарегистрирован: 15 апр 2015, 16:32
Репутация: 284
Настоящее имя: Евгений
Откуда: Брянск
Контактная информация:

Re: Фрезерный по дереву 2000х1000 - проект

Сообщение Taganrog »

AVK74 писал(а):Вот примерно так мне представляется Y на рейке:
Значит я понял правильно. Это почти калька того ,что я на модели выше показал. Вот только мне не нравиться блок с валом и шестерней. Да и рейку перевернул в низ зубами чтоб меньше пыль собиралась.
А не нравиться этим :

На 1 подшибнике как то не вариант. а с 2 подшибниками приходиться городить "скобу из 3 пластин" (синюю) .Красные -подшибники.
Скриншот 2016-08-17 21.54.43.png (2791 просмотр) <a class='original' href='./download/file.php?id=87119&mode=view' target=_blank>Загрузить оригинал (338.59 КБ)</a>
Ответить

Вернуться в «Фрезерные станки по дереву и пластикам, гравировальные станки, роутеры»