Стол? Это почему? Если речь про то, что компоновки с подвижным столом больше габарита самого стола в два раза, я знаю об этом.Predator писал(а):там добрая часть оси Х просто не будет использоваться
Думаю фрезер 300х300х100
- alexg-nn
- Мастер
- Сообщения: 793
- Зарегистрирован: 08 фев 2015, 12:45
- Репутация: 127
- Настоящее имя: Алексей
- Откуда: Нижний Новгород
- Контактная информация:
Re: Думаю фрезер 300х300х100
- Predator
- Мастер
- Сообщения: 9583
- Зарегистрирован: 18 июл 2013, 18:26
- Репутация: 2531
- Контактная информация:
Re: Думаю фрезер 300х300х100
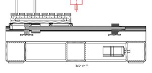
Вот объясни мне, как в эту часть стола шпиндель попадёт при такой компановке портала?alexg-nn писал(а):Это почему?
- alexg-nn
- Мастер
- Сообщения: 793
- Зарегистрирован: 08 фев 2015, 12:45
- Репутация: 127
- Настоящее имя: Алексей
- Откуда: Нижний Новгород
- Контактная информация:
Re: Думаю фрезер 300х300х100
А что тебя смущает? Гайка ШВП просто смещена в левую часть стола. Сам стол двигается от края до края без каких либо проблем, я проверял это во всех положениях.
- Predator
- Мастер
- Сообщения: 9583
- Зарегистрирован: 18 июл 2013, 18:26
- Репутация: 2531
- Контактная информация:
Re: Думаю фрезер 300х300х100
А, где ты видел, что я написал о том, что не двигается от края до края?!alexg-nn писал(а):Сам стол двигается от края до края без каких либо проблем, я проверял это во всех положениях
Меня смущает то, что до зоны выделенной красным, шпиндель никогда не доберётся! А тебя это не смущает?!alexg-nn писал(а):А что тебя смущает?
- alexg-nn
- Мастер
- Сообщения: 793
- Зарегистрирован: 08 фев 2015, 12:45
- Репутация: 127
- Настоящее имя: Алексей
- Откуда: Нижний Новгород
- Контактная информация:
Re: Думаю фрезер 300х300х100
Ось шпинделя будет проходить по центру конструкции (грубо, по центру трубы внизу рисунка), как видно, стол перебегает эту линию в обоих направлениях
- Predator
- Мастер
- Сообщения: 9583
- Зарегистрирован: 18 июл 2013, 18:26
- Репутация: 2531
- Контактная информация:
Re: Думаю фрезер 300х300х100
alexg-nn, Еще раз вдумчиво посмотри на свои чертежи и подумай над тем, о чём я говорю!
Ты тут уже не первый с такой компановкой, объяснять уже устал честное слово...
Ты тут уже не первый с такой компановкой, объяснять уже устал честное слово...
- alexg-nn
- Мастер
- Сообщения: 793
- Зарегистрирован: 08 фев 2015, 12:45
- Репутация: 127
- Настоящее имя: Алексей
- Откуда: Нижний Новгород
- Контактная информация:
Re: Думаю фрезер 300х300х100
Последний подход
Вот так примерно висит шпиндель
Я не вижу недоступных точек в поле стола, если шпиндель ходит в плоскости, перпендикулярной чертежу. Может быть вы что то не так поняли?
- frezeryga
- Почётный участник

- Сообщения: 13713
- Зарегистрирован: 18 авг 2013, 16:08
- Репутация: 5069
- Откуда: Жуковский
- Контактная информация:
Re: Думаю фрезер 300х300х100
Невижу проблемы. В зону выделеную красным шпиндель попадать и не должен поскольку портал неподвижен а вот стол любым краем под шпиндель приедет. Сварка зло я за плиту.
email frezeryga@yandex.ru
instagram https://www.instagram.com/frezeryga
telegram https://t.me/md_cnc_frezeryga https://t.me/frezeryga
instagram https://www.instagram.com/frezeryga
telegram https://t.me/md_cnc_frezeryga https://t.me/frezeryga
- Predator
- Мастер
- Сообщения: 9583
- Зарегистрирован: 18 июл 2013, 18:26
- Репутация: 2531
- Контактная информация:
Re: Думаю фрезер 300х300х100
Ну, если так, тогда ладно, а по первому скриншоту я бы не сказал, что он будет в этом местеalexg-nn писал(а):Вот так примерно висит шпиндель
- alexg-nn
- Мастер
- Сообщения: 793
- Зарегистрирован: 08 фев 2015, 12:45
- Репутация: 127
- Настоящее имя: Алексей
- Откуда: Нижний Новгород
- Контактная информация:
Re: Думаю фрезер 300х300х100
А ведь я тебе почти поверил! И глаза у тебя были такие, натуральные... (с) 
Расположение стоек ещё под вопросом, пока суппорта Y и Z не до конца спроектированы.
Расположение стоек ещё под вопросом, пока суппорта Y и Z не до конца спроектированы.
- Predator
- Мастер
- Сообщения: 9583
- Зарегистрирован: 18 июл 2013, 18:26
- Репутация: 2531
- Контактная информация:
Re: Думаю фрезер 300х300х100
alexg-nn писал(а):А ведь я тебе почти поверил! И глаза у тебя были такие, натуральные...
- alexg-nn
- Мастер
- Сообщения: 793
- Зарегистрирован: 08 фев 2015, 12:45
- Репутация: 127
- Настоящее имя: Алексей
- Откуда: Нижний Новгород
- Контактная информация:
Re: Думаю фрезер 300х300х100
Не спорю.
В принципе, я прикидывал суппорты пока только вот таким простейшим образом.
Плиты там 16 мм дюраль, и при этом вылет до оси шпинделя от поверхности рельс составил почти 150мм. Как то визуально громоздко, но я не представляю, как это можно "ужать" - каретка кушает 30мм минимум, а если пользоваться тем же кронштейном для гайки ШВП, что и везде - так вообще все 40мм. Кронштейн крепления шпинделя SPH80.
В принципе, я прикидывал суппорты пока только вот таким простейшим образом.
Плиты там 16 мм дюраль, и при этом вылет до оси шпинделя от поверхности рельс составил почти 150мм. Как то визуально громоздко, но я не представляю, как это можно "ужать" - каретка кушает 30мм минимум, а если пользоваться тем же кронштейном для гайки ШВП, что и везде - так вообще все 40мм. Кронштейн крепления шпинделя SPH80.
Re: Думаю фрезер 300х300х100
красивая там картинка на усп плитах - где бы про неё прочитать. и похоже вместо привычных рельс там успшные же детали используются. а как такой чпушится?
но ведь и с ним тоже проблемы вылезут - где брать эти "кубики".
но ведь и с ним тоже проблемы вылезут - где брать эти "кубики".
- Дрюня
- Почётный участник

- Сообщения: 2040
- Зарегистрирован: 25 ноя 2013, 00:19
- Репутация: 1504
- Настоящее имя: Андрей
- Откуда: Днепр
- Контактная информация:
Re: Думаю фрезер 300х300х100
Можно каретки расставить шире и теоретически будет "устойчивей", можно организовать "выезд фрезы" за область рабочего поля к датчику длины инструмента или "магазину автосмены" инструмента.Predator писал(а):Никогда не понимал таких конструкций, как у тебя на скриншоте, там добрая часть оси Х просто не будет использоваться, неужели ты сам не видишь этого?!
Re: Думаю фрезер 300х300х100
просмотрел, впечатляет! но как подумаешь, какие для этого нужны части и где их брать - сразу сдаешься.
та тема уже давно заброшена, некромантствовать не хочется. какая размерность? 8? 12?
смотрю брахолку чипмейкера.
допустим плита основания там есть
УСП12 240х240
есть некий Угол УСП 12, 90 градусов.
а как называются направляющие и винтовые передачи? и как оно потом превращается в чпу?
та тема уже давно заброшена, некромантствовать не хочется. какая размерность? 8? 12?
смотрю брахолку чипмейкера.
допустим плита основания там есть
УСП12 240х240
есть некий Угол УСП 12, 90 градусов.
а как называются направляющие и винтовые передачи? и как оно потом превращается в чпу?
- Дрюня
- Почётный участник

- Сообщения: 2040
- Зарегистрирован: 25 ноя 2013, 00:19
- Репутация: 1504
- Настоящее имя: Андрей
- Откуда: Днепр
- Контактная информация:
Re: Думаю фрезер 300х300х100
Листайте форум, здесь всё есть. Потихоньку разберётесь в ЧПУшном сленге и будете понимать всё больше и больше.pup писал(а): а как называются направляющие и винтовые передачи? и как оно потом превращается в чпу?
Re: Думаю фрезер 300х300х100
не, я про то, как это назвается в терминологии усп - как в брахолке искать (пытаюсь прикинуть бюджет станины из УСП)
Re: Думаю фрезер 300х300х100
спасибо! листаю.
минимальны набор: две плиты, угольник крепежный правый, угольник крепежный левый.
швп в каталоге не нашел, как и рельс. на чипмейкере в той теме автор упоминает некий коноплевский столик - видимо там и есть и направляющие, и швп по осям x и y? а вместо оси z- суппорт от токарного, так?
он там использует моторчик от игрушки и шпиндельную головку таиг - имхо проще и эффективнее взять у китайцев шпиндель с водяным охлаждением?
ну и про очпушивание: бытует мнение, что взрослые железные фрезера не особо рассчитаны на то, чтобы их гоняли взад-вперёд шаговыми моторчиками…
дырявить усп под свои нужды выглядит кощунством. с другом стороны, как я понимаю, их не придётся шабрить для установки направляющих. или ошибаюсь?
соррри за спам в чужой теме.
минимальны набор: две плиты, угольник крепежный правый, угольник крепежный левый.
швп в каталоге не нашел, как и рельс. на чипмейкере в той теме автор упоминает некий коноплевский столик - видимо там и есть и направляющие, и швп по осям x и y? а вместо оси z- суппорт от токарного, так?
он там использует моторчик от игрушки и шпиндельную головку таиг - имхо проще и эффективнее взять у китайцев шпиндель с водяным охлаждением?
ну и про очпушивание: бытует мнение, что взрослые железные фрезера не особо рассчитаны на то, чтобы их гоняли взад-вперёд шаговыми моторчиками…
дырявить усп под свои нужды выглядит кощунством. с другом стороны, как я понимаю, их не придётся шабрить для установки направляющих. или ошибаюсь?
соррри за спам в чужой теме.