Медицинский стол

Конструкции станков, линейные перемещения, направляющие, передачи.
Rinat97
Новичок
Сообщения: 2
Зарегистрирован: 20 сен 2022, 18:27
Репутация: 0
Настоящее имя: Ринат
Контактная информация:

Медицинский стол

Сообщение Rinat97 »

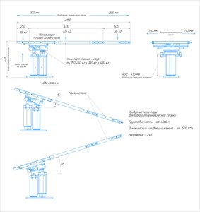
Добрый день! Немного не по теме данного форума, но очень нужна помощь экспертов, так как работаем с этим впервые. Разрабатываем медицинский стол (схему вложил pdf, jpg). Возникли проблемы с компоновкой и выбором узлов перемещения. А именно: телескопических колонн (покупные, китайские), отвечающих за вертикальное перемешение и наклон стола и линейных направляющих (HIWIN 15мм) вкупе с ШВП, отвечающих за продольное и поперечное перемещение стола. Консольность стола обязательна. Возможно ли реализовать данный вариант компоновки стола, как на схеме. Жду ваших комментарий, на возникающие вопросы готов ответить, спасибо.
Вложения
Skhema_stola_2_0.pdf
(128.11 КБ) 216 скачиваний
Skhema_stola_2_0.jpg (3430 просмотров) <a class='original' href='./download/file.php?id=204934&mode=view' target=_blank>Загрузить оригинал (2.83 МБ)</a>
AAN
Мастер
Сообщения: 313
Зарегистрирован: 14 апр 2015, 10:28
Репутация: 39
Настоящее имя: Антон
Откуда: Томск
Контактная информация:

Re: Медицинский стол

Сообщение AAN »

возможно-то возможно, но какой смысл использовать в данном конкретном случае паралельную гидравлику? Меньше конструировать?
Скопируйте механизм подьёма у ручного гидравлического штабелёра, организовав наклон стола наклонным подпорным гидроцилиндром, получится проще и лучше.
Rinat97
Новичок
Сообщения: 2
Зарегистрирован: 20 сен 2022, 18:27
Репутация: 0
Настоящее имя: Ринат
Контактная информация:

Re: Медицинский стол

Сообщение Rinat97 »

AAN писал(а): 21 сен 2022, 06:28 возможно-то возможно, но какой смысл использовать в данном конкретном случае паралельную гидравлику? Меньше конструировать?
Скопируйте механизм подьёма у ручного гидравлического штабелёра, организовав наклон стола наклонным подпорным гидроцилиндром, получится проще и лучше.
В данных колоннах не используется гидравлика. Там, насколько я понимаю, используется электропривод. Ручное управление нам не подходит.
AAN
Мастер
Сообщения: 313
Зарегистрирован: 14 апр 2015, 10:28
Репутация: 39
Настоящее имя: Антон
Откуда: Томск
Контактная информация:

Re: Медицинский стол

Сообщение AAN »

Гидравлика позволяет создавать большие усилия в малых габаритах и при этом недорого регулируется, долговечна. Электромеханика с такими же показателями будет дороже и вечный домоклов меч по комплектующим висеть будет...
Ответить

Вернуться в «Механика»