- ага, пачками, по 20-30 штук
для подведения общего знаменателя предлагаю методику
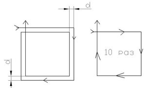
По траектории с левомого рисунка выпиливаем бобышку высотой H. Замеряем микрометром/эл.штангелем/рулеткой размеры квадратика Xs Ys
На подаче в 5 раз меньше гоняем 10 раз по внутреннему контуру. Снова замеряем размеры квадратика Xe Ye
Точность станка будет определяться формулкой T=sqrt((Xs-Xe)^2+(Ys-Ye)^2)
Для разных классов станков использовать разные шкалы точности:
Твв (висячие валы): материал Д16т, H=5мм, d=0.2мм F=500мм/мин
Тап (алю профиль): материал Д16т, H=10мм, d=1мм F=1000мм/мин
Тлч (литая чугуняка):материал железо, H=10мм, d=1мм F=500мм/мин
Критика, предложение, дополнения...

