Мой первый станок

Фрезерные и гравировальные станки для обработки мягких материалов (дерево, пластики, мягкие металлы).
Аватара пользователя
Fisher
Почётный участник
Почётный участник
Сообщения: 3391
Зарегистрирован: 09 апр 2012, 12:39
Репутация: 424
Откуда: Киров
Контактная информация:

Re: Мой первый станок

Сообщение Fisher »

Nick писал(а): Главное рассчитать так, чтобы фреза нормально вставала.
Если я правильно понимаю, фреза должна стоять по центру масс портала?
А расстояния в 50 мм хватит для смены инструмента?
www.cncru.ru - все виды станков с ЧПУ. Комплектующие.
Аватара пользователя
Nick
Мастер
Сообщения: 22776
Зарегистрирован: 23 ноя 2009, 16:45
Репутация: 1735
Заслуга: Developer
Откуда: Gatchina, Saint-Petersburg distr., Russia
Контактная информация:

Re: Мой первый станок

Сообщение Nick »

Это смотря какое соединение...
Аватара пользователя
Fisher
Почётный участник
Почётный участник
Сообщения: 3391
Зарегистрирован: 09 апр 2012, 12:39
Репутация: 424
Откуда: Киров
Контактная информация:

Re: Мой первый станок

Сообщение Fisher »

Я наверное не правильно выразился. Точнее будет: На вертикальной ОСИ центра масс
www.cncru.ru - все виды станков с ЧПУ. Комплектующие.
Аватара пользователя
Nick
Мастер
Сообщения: 22776
Зарегистрирован: 23 ноя 2009, 16:45
Репутация: 1735
Заслуга: Developer
Откуда: Gatchina, Saint-Petersburg distr., Russia
Контактная информация:

Re: Мой первый станок

Сообщение Nick »

Не обязательно, главное, чтобы рычаг на направляющих был как можно меньше. Т.е. как можно ближе к направляющим.

Попробуй хоть какой-нибудь чертежик набросать и вешай сюда.
giraf_79
Почётный участник
Почётный участник
Сообщения: 1185
Зарегистрирован: 27 дек 2011, 13:55
Репутация: 123
Настоящее имя: Рафаэль
Откуда: Самара
Контактная информация:

Re: Мой первый станок

Сообщение giraf_79 »

Для крепления Направляющих от печатных машин, можно сделать как на фото, высверливается по 3 отв-ия по торцам, нарезаются резьбы закручиваются шпильки и крепи его куда хош.
Вложения
Изображение 054.jpg (3446 просмотров) <a class='original' href='./download/file.php?id=5066&sid=6241de86e4fe8bb7a28cf1029316ff1f&mode=view' target=_blank>Загрузить оригинал (465.94 КБ)</a>
Изготовление станков плазменной резки с ЧПУ и фрезерные станки с ЧПУ
Канал на Ютуб https://www.youtube.com/channel/UCcTl7E ... subscriber
giraf_79
Почётный участник
Почётный участник
Сообщения: 1185
Зарегистрирован: 27 дек 2011, 13:55
Репутация: 123
Настоящее имя: Рафаэль
Откуда: Самара
Контактная информация:

Re: Мой первый станок

Сообщение giraf_79 »

Еще фото для Fisher в помощь при создании :cheesy:
Вложения
S5004268.JPG (3444 просмотра) <a class='original' href='./download/file.php?id=5067&sid=6241de86e4fe8bb7a28cf1029316ff1f&mode=view' target=_blank>Загрузить оригинал (465.78 КБ)</a>
Изготовление станков плазменной резки с ЧПУ и фрезерные станки с ЧПУ
Канал на Ютуб https://www.youtube.com/channel/UCcTl7E ... subscriber
Аватара пользователя
Fisher
Почётный участник
Почётный участник
Сообщения: 3391
Зарегистрирован: 09 апр 2012, 12:39
Репутация: 424
Откуда: Киров
Контактная информация:

Re: Мой первый станок

Сообщение Fisher »

Спасибо за фоты. Конструкцию такую видел. Если честно - не понравилась. Много сумбура имхо. Причем она будет работать, если машинки одинаковые хотя-бы две. У моих разница по длинам рельс порядка 15 мм. Так что буду комбинировать, а разницу длин использую для установки ограничителей. Основная конструкция будет алюминиево-текстолитовая.

Ничего сегодня не разобрал - проспал весь вечер ))) Поставил себе задачу за выходные вычертить модель. Буду стараться ;)
www.cncru.ru - все виды станков с ЧПУ. Комплектующие.
Аватара пользователя
Fisher
Почётный участник
Почётный участник
Сообщения: 3391
Зарегистрирован: 09 апр 2012, 12:39
Репутация: 424
Откуда: Киров
Контактная информация:

Re: Мой первый станок

Сообщение Fisher »

Наконец-то разгреб железо.
Что имею.

Валы принтеров:
1. L=455 mm; d=11,7mm - 2 шт;
2. L=462 mm; d=11.7 mm;
3. L=450,5 mm; d=14 mm;
4. L=462 mm; d=9,7 mm - 2 шт.
Рельсы:
L=511 и 545 mm - по 2 штуки.
Дюралевые боковины:
249X143mm в габарите.
Двигатели:
ЕМ-35, ЕМ-182 (2 шт), М42SP-5 (7,5 гр/шаг 35 Ом), ЕМ-34, SANYO TYPE 103-550-0149 (1,857 гр/шаг 10,7 ОМ), ЕМ-181 (2 шт)
Вложения
куча.JPG (3422 просмотра) <a class='original' href='./download/file.php?id=5092&sid=6241de86e4fe8bb7a28cf1029316ff1f&mode=view' target=_blank>Загрузить оригинал (83.93 КБ)</a>
рельса.JPG (3422 просмотра) <a class='original' href='./download/file.php?id=5093&sid=6241de86e4fe8bb7a28cf1029316ff1f&mode=view' target=_blank>Загрузить оригинал (45.07 КБ)</a>
www.cncru.ru - все виды станков с ЧПУ. Комплектующие.
Аватара пользователя
Fisher
Почётный участник
Почётный участник
Сообщения: 3391
Зарегистрирован: 09 апр 2012, 12:39
Репутация: 424
Откуда: Киров
Контактная информация:

Re: Мой первый станок

Сообщение Fisher »

Ах да...
Прикинул ось Y ;)
Вложения
ось Y.JPG (3422 просмотра) <a class='original' href='./download/file.php?id=5094&sid=6241de86e4fe8bb7a28cf1029316ff1f&mode=view' target=_blank>Загрузить оригинал (70.98 КБ)</a>
www.cncru.ru - все виды станков с ЧПУ. Комплектующие.
Аватара пользователя
Fisher
Почётный участник
Почётный участник
Сообщения: 3391
Зарегистрирован: 09 апр 2012, 12:39
Репутация: 424
Откуда: Киров
Контактная информация:

Re: Мой первый станок

Сообщение Fisher »

Начал чертить модель.
От боковин печ.машинок откажусь - коряво :wtf:
Вложения
Сборка.jpg (3405 просмотров) <a class='original' href='./download/file.php?id=5108&sid=6241de86e4fe8bb7a28cf1029316ff1f&mode=view' target=_blank>Загрузить оригинал (184.24 КБ)</a>
www.cncru.ru - все виды станков с ЧПУ. Комплектующие.
Аватара пользователя
Nick
Мастер
Сообщения: 22776
Зарегистрирован: 23 ноя 2009, 16:45
Репутация: 1735
Заслуга: Developer
Откуда: Gatchina, Saint-Petersburg distr., Russia
Контактная информация:

Re: Мой первый станок

Сообщение Nick »

Ось Y очень высоко стоит, чем ниже она будет, тем точнее поучится станок.
Аватара пользователя
Fisher
Почётный участник
Почётный участник
Сообщения: 3391
Зарегистрирован: 09 апр 2012, 12:39
Репутация: 424
Откуда: Киров
Контактная информация:

Re: Мой первый станок

Сообщение Fisher »

Не. Не высоко. Жертвенник же еще будет
Это зрительно кажется ее высота. Опора рельс - 40 мм высотой. Ширина стенок портала - 100. Так что в самый раз.
www.cncru.ru - все виды станков с ЧПУ. Комплектующие.
Аватара пользователя
Fisher
Почётный участник
Почётный участник
Сообщения: 3391
Зарегистрирован: 09 апр 2012, 12:39
Репутация: 424
Откуда: Киров
Контактная информация:

Re: Мой первый станок

Сообщение Fisher »

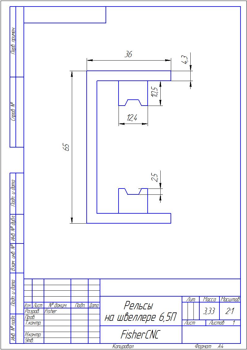
Отказался от профильной трубы под рельсами. Буду делать на швеллере 6,5П
Вот таким макаром.

А каретка будет ходить внутри.
Вложения
рельсы в швеллере.jpg (3319 просмотров) <a class='original' href='./download/file.php?id=5178&sid=6241de86e4fe8bb7a28cf1029316ff1f&mode=view' target=_blank>Загрузить оригинал (54.59 КБ)</a>
рельсы на швеллере.jpg (3319 просмотров) <a class='original' href='./download/file.php?id=5179&sid=6241de86e4fe8bb7a28cf1029316ff1f&mode=view' target=_blank>Загрузить оригинал (89.13 КБ)</a>
www.cncru.ru - все виды станков с ЧПУ. Комплектующие.
Аватара пользователя
Fisher
Почётный участник
Почётный участник
Сообщения: 3391
Зарегистрирован: 09 апр 2012, 12:39
Репутация: 424
Откуда: Киров
Контактная информация:

Re: Мой первый станок

Сообщение Fisher »

Закупился подшипниками на каретки и валы, купил втулки медно-графитовые на оси Y и Z
Дело движется по-тихоньку ;)
www.cncru.ru - все виды станков с ЧПУ. Комплектующие.
Аватара пользователя
Тима
Почётный участник
Почётный участник
Сообщения: 3162
Зарегистрирован: 01 мар 2012, 20:47
Репутация: 1089
Настоящее имя: Тимур
Откуда: КБР
Контактная информация:

Re: Мой первый станок

Сообщение Тима »

Fisher писал(а): Буду делать на швеллере 6,5П
у швеллера, если не ошибаюсь, внутренние стенки немного угловатые(не паролельны). как бы не пришлось фрезеровать!
Дорогу осилит идущий!
Я все пойму, Вы только дайте денег!!!
Аватара пользователя
Fisher
Почётный участник
Почётный участник
Сообщения: 3391
Зарегистрирован: 09 апр 2012, 12:39
Репутация: 424
Откуда: Киров
Контактная информация:

Re: Мой первый станок

Сообщение Fisher »

есть три вида швеллеров: П, У и гнутый. П - с параллельными стенками
www.cncru.ru - все виды станков с ЧПУ. Комплектующие.
Аватара пользователя
phoenixzp
Опытный
Сообщения: 187
Зарегистрирован: 06 фев 2012, 23:34
Репутация: 6
Контактная информация:

Re: Мой первый станок

Сообщение phoenixzp »

А как параллельность выставить? И что это за внутренние вставки? Пром или самому фрезеровать придется?
Аватара пользователя
Тима
Почётный участник
Почётный участник
Сообщения: 3162
Зарегистрирован: 01 мар 2012, 20:47
Репутация: 1089
Настоящее имя: Тимур
Откуда: КБР
Контактная информация:

Re: Мой первый станок

Сообщение Тима »

phoenixzp писал(а): И что это за внутренние вставки?
Это направляющие с печатной машинки! есть у меня пара таких!
Дорогу осилит идущий!
Я все пойму, Вы только дайте денег!!!
Аватара пользователя
Fisher
Почётный участник
Почётный участник
Сообщения: 3391
Зарегистрирован: 09 апр 2012, 12:39
Репутация: 424
Откуда: Киров
Контактная информация:

Re: Мой первый станок

Сообщение Fisher »

они самые ))
www.cncru.ru - все виды станков с ЧПУ. Комплектующие.
Аватара пользователя
Fisher
Почётный участник
Почётный участник
Сообщения: 3391
Зарегистрирован: 09 апр 2012, 12:39
Репутация: 424
Откуда: Киров
Контактная информация:

Re: Мой первый станок

Сообщение Fisher »

по ним прекрасно катаются подшипники 626-е. аккурат по каленым вкладышам
www.cncru.ru - все виды станков с ЧПУ. Комплектующие.
Ответить

Вернуться в «Фрезерные станки по дереву и пластикам, гравировальные станки, роутеры»