НЦ-31 Цикл G02 G03
-
Goncharov
- Новичок
- Сообщения: 5
- Зарегистрирован: 11 июл 2015, 00:54
- Репутация: 0
- Контактная информация:
НЦ-31 Цикл G02 G03
Интересует принцип описания данного цикла,а именно "Р1" и "Р2" параметра в самом цикле.
-
A-Tr
- Кандидат
- Сообщения: 77
- Зарегистрирован: 19 май 2015, 18:36
- Репутация: 40
- Настоящее имя: Александр
- Откуда: Харьков
- Контактная информация:
Re: НЦ-31 Цикл G02 G03
G2 или G3 определяет направление дуги по- или против часовой стрелки, если рассматривать движение от начальной к конечной точке
Параметр P1 - это расстояние между центром и точкой начала дуги, т.е. Xцентр-Xначала дуги. Задается "на сторону ". P2 - тоже самое для оси Z.
Знак не важен, все равно ЧПУ возводит эти значения в квадрат и вычисляет радиус дуги по теореме Пифагора.
Параметр P1 - это расстояние между центром и точкой начала дуги, т.е. Xцентр-Xначала дуги. Задается "на сторону ". P2 - тоже самое для оси Z.
Знак не важен, все равно ЧПУ возводит эти значения в квадрат и вычисляет радиус дуги по теореме Пифагора.
-
Goncharov
- Новичок
- Сообщения: 5
- Зарегистрирован: 11 июл 2015, 00:54
- Репутация: 0
- Контактная информация:
Re: НЦ-31 Цикл G02 G03
Тоесть я сразу задаю начальную точку "X" а по "Z" конечную,потом в P1 задаю центр "X" тоесть если у меня начальная координата Х60000 и Z-10000 использую G02 (по часовой). Мне нужно сделать в расточенном отверстии сферу,отверстие диаметром 60мм выйдя из Z-10000 в Z0 (в торец детали) Получается мне нужно из 60мм выйти на диаметр 80мм значит Р1 будет 40мм? если на сторону,и Р2 Z0(торец) 
-
A-Tr
- Кандидат
- Сообщения: 77
- Зарегистрирован: 19 май 2015, 18:36
- Репутация: 40
- Настоящее имя: Александр
- Откуда: Харьков
- Контактная информация:
Re: НЦ-31 Цикл G02 G03
-
Goncharov
- Новичок
- Сообщения: 5
- Зарегистрирован: 11 июл 2015, 00:54
- Репутация: 0
- Контактная информация:
Re: НЦ-31 Цикл G02 G03
Вот такой корпус турбины алюминевый. Я писал ранее что мне нужно от торца это "ноль" будет по привязке,заходить резцом в отверстие,и потом по циклу G02 описывать выходя в торец 0 детали.Как я знаю подьезжаешь в начальную точку XиZ от куда будет начинать движение резец,и потом забиваешь уже в цикле круговой интерполяции конечную XиZ ну и радиус. А на Нц всё замудрённо как-то... p1,р2 как их вычислять из двух имеющих чесел по координатам X,Z. Буду благодарен за обьяснение.
-
A-Tr
- Кандидат
- Сообщения: 77
- Зарегистрирован: 19 май 2015, 18:36
- Репутация: 40
- Настоящее имя: Александр
- Откуда: Харьков
- Контактная информация:
Re: НЦ-31 Цикл G02 G03
До завтра потерпит? До обеда постраюсь написать подробный ответ!
Седня пьяный, могу промахнуться.)
Седня пьяный, могу промахнуться.)
-
Goncharov
- Новичок
- Сообщения: 5
- Зарегистрирован: 11 июл 2015, 00:54
- Репутация: 0
- Контактная информация:
Re: НЦ-31 Цикл G02 G03
Да конечно,ну так сегодня же день рыбака) 
-
A-Tr
- Кандидат
- Сообщения: 77
- Зарегистрирован: 19 май 2015, 18:36
- Репутация: 40
- Настоящее имя: Александр
- Откуда: Харьков
- Контактная информация:
Re: НЦ-31 Цикл G02 G03
День рыбака меня не качает. А вот отправку жены на дачу требовалось обмыть)
-
A-Tr
- Кандидат
- Сообщения: 77
- Зарегистрирован: 19 май 2015, 18:36
- Репутация: 40
- Настоящее имя: Александр
- Откуда: Харьков
- Контактная информация:
Re: НЦ-31 Цикл G02 G03
Если я правильно понял из вышеизложенного, то надо сделать ТАК!
Я не знаю чем ты будешь растачивать на себя, но не суть.
Программа выглядит так:
~X 55
~Z -10
X60
G2 X80 Z0 Fcc P10 P0
В исходную точку надо подойти на предыдущих кадрах.
У тебя расстояние по Z между начальной точкой и цетром дуги нулевое, поэтому Р2=0. Но его надо ввести, а не опустить. Иначе херня будет получаться.
Я не знаю чем ты будешь растачивать на себя, но не суть.
Программа выглядит так:
~X 55
~Z -10
X60
G2 X80 Z0 Fcc P10 P0
В исходную точку надо подойти на предыдущих кадрах.
У тебя расстояние по Z между начальной точкой и цетром дуги нулевое, поэтому Р2=0. Но его надо ввести, а не опустить. Иначе херня будет получаться.
- Nick
- Мастер
- Сообщения: 22776
- Зарегистрирован: 23 ноя 2009, 16:45
- Репутация: 1735
- Заслуга: Developer
- Откуда: Gatchina, Saint-Petersburg distr., Russia
- Контактная информация:
Re: НЦ-31 Цикл G02 G03
Т.е. у НЦ-31 какой-то свой Gкод?
Вроде обычно вместо P используют R - аля радиус.
А P используется для задания дополнительных полных оборотов...
Вроде обычно вместо P используют R - аля радиус.
А P используется для задания дополнительных полных оборотов...
-
A-Tr
- Кандидат
- Сообщения: 77
- Зарегистрирован: 19 май 2015, 18:36
- Репутация: 40
- Настоящее имя: Александр
- Откуда: Харьков
- Контактная информация:
Re: НЦ-31 Цикл G02 G03
НЦ использует P1 и P2 как катеты и вычисляет радиус сама как гипотенузу. Кстати, на ней можно отработать только дугу меньше 90 градусов и лежащую в одном квадранте. Иначе две-три дуги, начальная точка следующей совпадает с конечной точкой предыдущей. Но ведь давайте отдадим ей должное, она старше меня, а уже умеет обрабатывать криволинейные поверхности.
Новые современные системы ЧПУ тоже умеют описывать дуги через координаты центра, только параметры это I, J, K соответственно. Используется для описания дуги больше 180 градусов. Или в посте указать деление на две дуги. Я использую последний способ как более наглядный. Все-таки видеть R в программе приятнее и понятней, чем какие-то там I, J, K/
Новые современные системы ЧПУ тоже умеют описывать дуги через координаты центра, только параметры это I, J, K соответственно. Используется для описания дуги больше 180 градусов. Или в посте указать деление на две дуги. Я использую последний способ как более наглядный. Все-таки видеть R в программе приятнее и понятней, чем какие-то там I, J, K/
-
Goncharov
- Новичок
- Сообщения: 5
- Зарегистрирован: 11 июл 2015, 00:54
- Репутация: 0
- Контактная информация:
Re: НЦ-31 Цикл G02 G03
Тоесть "P1" вычисляется во всех случаях отнимая от диаметра конечной точки закругления. Тобиш 80мм(конечная точка)- (диаметр отверстия) 60мм = 20/2=10мм
-
A-Tr
- Кандидат
- Сообщения: 77
- Зарегистрирован: 19 май 2015, 18:36
- Репутация: 40
- Настоящее имя: Александр
- Откуда: Харьков
- Контактная информация:
Re: НЦ-31 Цикл G02 G03
Нет. Это частный случай, когда центр дуги лежит на одном диаметре с конечной точкой. Позже нарисую общий случай.
Кстати, дуги ровно 90 градусов, занимающие один квадрант можно описывать через g12 и g13.там есть упрощенка, но я ей не пользуясь.
Кстати, дуги ровно 90 градусов, занимающие один квадрант можно описывать через g12 и g13.там есть упрощенка, но я ей не пользуясь.
-
A-Tr
- Кандидат
- Сообщения: 77
- Зарегистрирован: 19 май 2015, 18:36
- Репутация: 40
- Настоящее имя: Александр
- Откуда: Харьков
- Контактная информация:
Re: НЦ-31 Цикл G02 G03
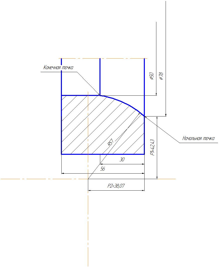
Вот общий случай для дуги.
Программа выглядит вот так:
~X78
~Z5
Z0
G3 X50 Z-30 Ff P42.43 P38.07 (движение против часовой стрелки).
Следовательно, P1=(Хцентр-Хнач.точка)/2
Р2=Zцентр-Zнач. точка.
Программа выглядит вот так:
~X78
~Z5
Z0
G3 X50 Z-30 Ff P42.43 P38.07 (движение против часовой стрелки).
Следовательно, P1=(Хцентр-Хнач.точка)/2
Р2=Zцентр-Zнач. точка.
