Изготовление зажима для трубогибочного станка

Запрос и предложение услуг по обработке, проектированию, моделированию и т.д.
Правила форума
Разрешается публиковать предложения по предоставлению услуг как физическим лицам так и коммерческим организациям, при соблюдении следующих условий:
1. должны присутствовать характеристики предлагаемых услуг, возможности оборудования
2. должна присутствовать стоимость услуги
3. должно присутствовать описание способов оплаты, доставки и места расположения (город)
4. один продавец - одна тема

Фотографии товаров приветствуются (фотографии должны быть вложениями к сообщениям).

Возможно размещение ссылки на свой сайт, с описанием товара, при обязательном соблюдении пунктов 1-3.

Администрация форума может удалить тему или сообщения из данного раздела на свое усмотрение, без объяснения причин!
Vit20
Новичок
Сообщения: 2
Зарегистрирован: 17 окт 2017, 18:10
Репутация: 0
Контактная информация:

Изготовление зажима для трубогибочного станка

Сообщение Vit20 »

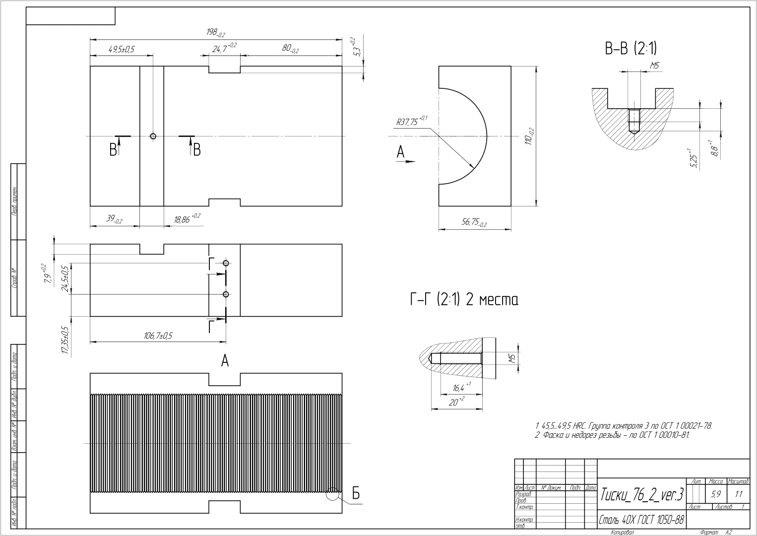
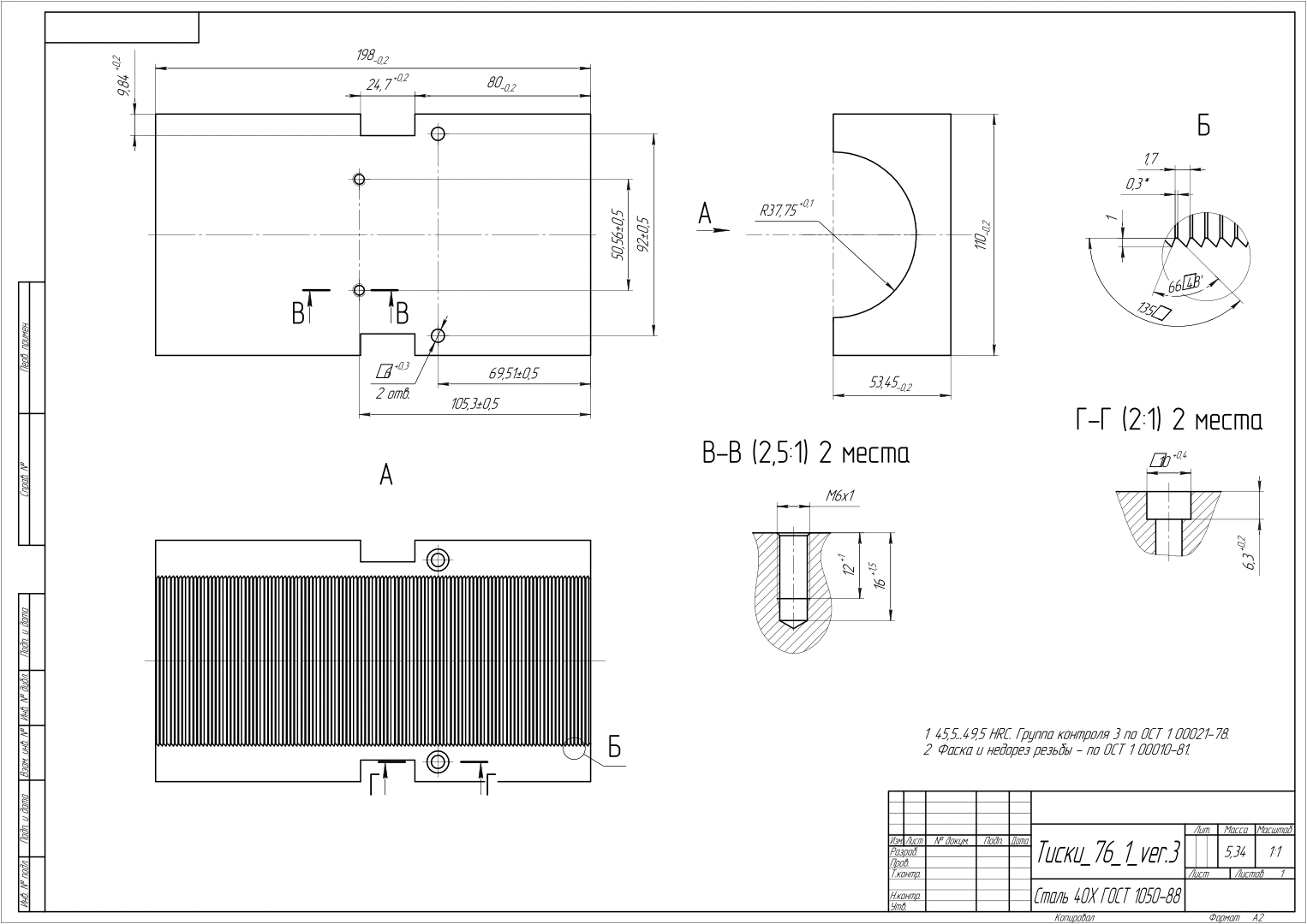
Требуется изготовить каленую деталь. Твердость 35 единиц. Зубья внутри направленные ( резьба не подойдет). После изготовления все зубья должны иметь одинаковую высоту. Иначе при зажиме трубы часть зубьев будет висеть в воздухе. Это недопустимо.Диаметр паза под трубу должен также в точности соответствовать чертежу. Уже делали несколько раз и постоянный брак. Больше оплачивать криворуких мастеров не будем. Все вопросы в почту или вотсапп. Vit20@inbox.ru 8 926 3358993 если надо, то есть 3d модель в солиде/автокаде
Вложения
Файл 29.09.2017, 13 44 54_1.PNG (2039 просмотров) <a class='original' href='./download/file.php?id=122314&mode=view' target=_blank>Загрузить оригинал (149.39 КБ)</a>
Файл 29.09.2017, 13 45 20_1.PNG (2039 просмотров) <a class='original' href='./download/file.php?id=122315&mode=view' target=_blank>Загрузить оригинал (136.57 КБ)</a>
Аватара пользователя
Urec
Мастер
Сообщения: 403
Зарегистрирован: 23 окт 2012, 11:32
Репутация: 92
Настоящее имя: Георгий
Откуда: г.Москва
Контактная информация:

Re: Изготовление зажима для трубогибочного станка

Сообщение Urec »

Вы конструируете себе технологические трудности и пытаетесь их решать
Ответить

Вернуться в «Услуги»