Фрезерный станок ЧПУ 3000х1500 по черным металлам
-
proenz0
- Кандидат
- Сообщения: 66
- Зарегистрирован: 12 янв 2018, 06:39
- Репутация: -2
- Настоящее имя: Придворный Андрей
- Контактная информация:
Re: Фрезерный станок ЧПУ 3000х1500 по черным металлам
Вот общий вид станка. https://cloud.mail.ru/public/8fi5/TtTveiLvq Рабочую зону Z уменьшили до 200 мм, двигатели поменяли на сервопривода 130ST-M15015 220 В 2.3KW. Жду прилета тухлых помидор, с приколотыми к ним полезными советами))
- Umnik
- Мастер
- Сообщения: 2563
- Зарегистрирован: 20 июл 2014, 19:32
- Репутация: 2153
- Настоящее имя: Георгий
- Откуда: Калуга
- Контактная информация:
Re: Фрезерный станок ЧПУ 3000х1500 по черным металлам
На станке стоят сервы в 2,3 кВт?
Какой у них номинальный момент? Ньютонов 10? А максимальный наверно 25.
Да они в бараний рог станину скрутят. Или винты порвут, если они не 32 мм, наверно. Какая необходимость в таких приводах?
Какой у них номинальный момент? Ньютонов 10? А максимальный наверно 25.
Да они в бараний рог станину скрутят. Или винты порвут, если они не 32 мм, наверно. Какая необходимость в таких приводах?
-
proenz0
- Кандидат
- Сообщения: 66
- Зарегистрирован: 12 янв 2018, 06:39
- Репутация: -2
- Настоящее имя: Придворный Андрей
- Контактная информация:
Re: Фрезерный станок ЧПУ 3000х1500 по черным металлам
Момент у них 15 номинал и 40 по-моему максимальный и то на удержание. На станке их будет 4 - 2 на оси Х (зубчатая рейка или швп 32/40, пока этот вопрос прорабатывается), 1 на оси Y (тоже рейка или швп 32/40) и 1 на оси Z швп 32.Umnik писал(а):На станке стоят сервы в 2,3 кВт?
Какой у них номинальный момент? Ньютонов 10? А максимальный наверно 25.
Да они в бараний рог станину скрутят. Или винты порвут, если они не 32 мм, наверно. Какая необходимость в таких приводах?
- Umnik
- Мастер
- Сообщения: 2563
- Зарегистрирован: 20 июл 2014, 19:32
- Репутация: 2153
- Настоящее имя: Георгий
- Откуда: Калуга
- Контактная информация:
Re: Фрезерный станок ЧПУ 3000х1500 по черным металлам
Я лишь хочу сказать, что если действительно хотите использовать такие сервы, да ещё и по паре на одной оси, то все остальное тоже должно им соответствовать. В первую очередь станина.
Взять тот же мультикам. Какие на нем по моменту и мощности движки стоят? Фрезерюга на таком работает, может подсказать. Наверняка в киловатт или около того.
Так он сварен из трубы что то около 200*300*10 и отожжен.
В вашем случае станина должна быть из литого чугуна или бетона, метровой толщины, наверно.
Да и как по мне, 200 мм высоты для чернины мало. Ни риски нормальные не поставить, ни нормальный силовой инструмент не воткнуть. Работать расточной головкой на такой высоте уже вряд ли получится. Вы же не 2 кВт шпиндель с ER20 использовать собрались? В противном случае что делать на таком станке? Кроить листы? Так это проще плазмой наверно, или лазером.
Взять тот же мультикам. Какие на нем по моменту и мощности движки стоят? Фрезерюга на таком работает, может подсказать. Наверняка в киловатт или около того.
Так он сварен из трубы что то около 200*300*10 и отожжен.
В вашем случае станина должна быть из литого чугуна или бетона, метровой толщины, наверно.
Да и как по мне, 200 мм высоты для чернины мало. Ни риски нормальные не поставить, ни нормальный силовой инструмент не воткнуть. Работать расточной головкой на такой высоте уже вряд ли получится. Вы же не 2 кВт шпиндель с ER20 использовать собрались? В противном случае что делать на таком станке? Кроить листы? Так это проще плазмой наверно, или лазером.
-
proenz0
- Кандидат
- Сообщения: 66
- Зарегистрирован: 12 янв 2018, 06:39
- Репутация: -2
- Настоящее имя: Придворный Андрей
- Контактная информация:
Re: Фрезерный станок ЧПУ 3000х1500 по черным металлам
Станок будет использоваться в основном как сверловка, но помимо этого нужна возможность фрезеровки плоскостей и фрезеровка пазов на опорах наших изделий. Трубные решетки в основном до 140 мм толщиной, но там, в зависимости от диаметра, от 400 до 6 тыс отверстий под теплообменную трубу, и сейчас все это сверлится на радиально-сверлильных станках лохматых годов. Это будет основное направление. С движками это один из вариантов. Я поэтому и пишу здесь, т.к. нигде не нашел точной формулы для расчета их мощности. Рейка сейчас тоже под вопросом, т.к. меня убеждают в том, что точность у нее лапоть в право, лапоть в лево.
-
proenz0
- Кандидат
- Сообщения: 66
- Зарегистрирован: 12 янв 2018, 06:39
- Репутация: -2
- Настоящее имя: Придворный Андрей
- Контактная информация:
Re: Фрезерный станок ЧПУ 3000х1500 по черным металлам
Шпиндель планируем поставить механический с ременной передачей и ассинхронником в 5,5 или 7,5 кВт. Патрон BT40
-
MGG
- Мастер
- Сообщения: 3673
- Зарегистрирован: 08 фев 2016, 16:33
- Репутация: 1010
- Настоящее имя: Манн Геннадий Геннадьевич
- Откуда: Москва
- Контактная информация:
Re: Фрезерный станок ЧПУ 3000х1500 по черным металлам
Не дай бог какой-то клин, и станина станет как буква u, на мс12-250 стоят у знакомого 750 ватт, нагрузка в работе 60-70%
http://www.cnc-club.ru/forum/viewtopic. ... 76#p304076 Поставки оборудования для ваших станков
https://www.instagram.com/dtw.moscow/
dtw.moscow@gmail.com
https://www.instagram.com/dtw.moscow/
dtw.moscow@gmail.com
- Umnik
- Мастер
- Сообщения: 2563
- Зарегистрирован: 20 июл 2014, 19:32
- Репутация: 2153
- Настоящее имя: Георгий
- Откуда: Калуга
- Контактная информация:
Re: Фрезерный станок ЧПУ 3000х1500 по черным металлам
В том же зетеке есть рейки с заявленной точностью 0,1 мм/м, что примерно 3 сотки на 300 мм. Это выше, чем у стандартной швп С7.
Уж для сверловки то хватит точно.
Уж для сверловки то хватит точно.
-
proenz0
- Кандидат
- Сообщения: 66
- Зарегистрирован: 12 янв 2018, 06:39
- Репутация: -2
- Настоящее имя: Придворный Андрей
- Контактная информация:
Re: Фрезерный станок ЧПУ 3000х1500 по черным металлам
Для такого случаю все привода идут через ременную передачу, в худшем случае порвет ремень и все.MGG писал(а):Не дай бог какой-то клин, и станина станет как буква u, на мс12-250 стоят у знакомого 750 ватт, нагрузка в работе 60-70%
- Hanter
- Мастер
- Сообщения: 5414
- Зарегистрирован: 27 янв 2012, 14:52
- Репутация: 4338
- Настоящее имя: Алексей
- Откуда: Питер
- Контактная информация:
Re: Фрезерный станок ЧПУ 3000х1500 по черным металлам
Вы его сначала сами попробуйте порвать.... у людей шпонки срезает, валы ломает, а ремень почему то не рвется...proenz0 писал(а):Для такого случаю все привода идут через ременную передачу, в худшем случае порвет ремень и все.
Опыт - это когда на смену вопросам: "Что? Где? Когда? Как? Почему?" Приходит единственный вопрос: "Нахрена?"
==========================================
фрезерная и токарная обработка на станках с чпу.
Резка, гибка, сварка и порошковая окраса.
==========================================
фрезерная и токарная обработка на станках с чпу.
Резка, гибка, сварка и порошковая окраса.
-
MGG
- Мастер
- Сообщения: 3673
- Зарегистрирован: 08 фев 2016, 16:33
- Репутация: 1010
- Настоящее имя: Манн Геннадий Геннадьевич
- Откуда: Москва
- Контактная информация:
Re: Фрезерный станок ЧПУ 3000х1500 по черным металлам
Да, и там еще редукция будет, короче я так понимаю, что при клине, если клин будте в одном конце, то положив на другой шар, можно получить гибкую катапультуproenz0 писал(а):Для такого случаю все привода идут через ременную передачу, в худшем случае порвет ремень и все.
http://www.cnc-club.ru/forum/viewtopic. ... 76#p304076 Поставки оборудования для ваших станков
https://www.instagram.com/dtw.moscow/
dtw.moscow@gmail.com
https://www.instagram.com/dtw.moscow/
dtw.moscow@gmail.com
- magnetic
- Мастер
- Сообщения: 431
- Зарегистрирован: 03 авг 2015, 11:27
- Репутация: 73
- Настоящее имя: Алексей
- Контактная информация:
Re: Фрезерный станок ЧПУ 3000х1500 по черным металлам
Это смотря какая рейка, как установлена и т.п.proenz0 писал(а): Рейка сейчас тоже под вопросом, т.к. меня убеждают в том, что точность у нее лапоть в право, лапоть в лево.
Какие есть идеи кроме рейки на такой длине?
Вилки и ложки на фото из AISI304!
- sorter
- Мастер
- Сообщения: 314
- Зарегистрирован: 02 фев 2016, 10:40
- Репутация: 20
- Настоящее имя: Леонид
- Контактная информация:
Re: Фрезерный станок ЧПУ 3000х1500 по черным металлам
Так если не нужны функции координатно расточного то рейка покатит вполне. Дырявить самое то. Вы там смотрите чтоб на каком нить сверлильном патроне который вы планируете использовать не набегало больше биения чем дает рейка.
- Dimka
- Мастер
- Сообщения: 1400
- Зарегистрирован: 14 июл 2016, 23:40
- Репутация: 347
- Настоящее имя: Дима
- Откуда: Санкт-Петербург
- Контактная информация:
Re: Фрезерный станок ЧПУ 3000х1500 по черным металлам
Для такого станка линейки, наверное, небольшая часть цены на постройку
.
Re: Фрезерный станок ЧПУ 3000х1500 по черным металлам
аффтор жеж написал про ВТ40 оно вполне прокатит как сверлильный патрон.sorter писал(а): Вы там смотрите чтоб на каком нить сверлильном патроне
хотя скорее там будет сплошное фрезерование отверстий. с СОЖ,
так шта про ванну надо сразу думать.
- sorter
- Мастер
- Сообщения: 314
- Зарегистрирован: 02 фев 2016, 10:40
- Репутация: 20
- Настоящее имя: Леонид
- Контактная информация:
Re: Фрезерный станок ЧПУ 3000х1500 по черным металлам
ну тады нет проблем. Да просто сверлить на сухую тоже так себе затея. Ванну один фиг делать.muxa писал(а):аффтор жеж написал про ВТ40 оно вполне прокатит как сверлильный патрон.sorter писал(а): Вы там смотрите чтоб на каком нить сверлильном патроне
хотя скорее там будет сплошное фрезерование отверстий. с СОЖ,
так шта про ванну надо сразу думать.
-
nkp
- Мастер
- Сообщения: 8340
- Зарегистрирован: 28 ноя 2011, 00:25
- Репутация: 1589
- Контактная информация:
Re: Фрезерный станок ЧПУ 3000х1500 по черным металлам
один раз мы устроили такоеHanter писал(а):Вы его сначала сами попробуйте порвать.... у людей шпонки срезает, валы ломает, а ремень почему то не рвется...
настраивали шпиндельный привод(поднимали из мертвых) , и по глупости начали сразу с одетым и натянутым ремнем(зубчатый 50мм)...
приводчики (как потом выяснилось)) поставили такое резкое торможение противовключением,что ремень лопнул(справедливости ради надо сказать ,что он конечно был еще "тех" времен))
но я за другое:
звук при этом был такой ,как будто рельса переломалась))
мужик стоял возле ПБ - чуть кал не пустил (я ближе к ЗБ был - сухим вроде остался
- Hanter
- Мастер
- Сообщения: 5414
- Зарегистрирован: 27 янв 2012, 14:52
- Репутация: 4338
- Настоящее имя: Алексей
- Откуда: Питер
- Контактная информация:
Re: Фрезерный станок ЧПУ 3000х1500 по черным металлам
я могу со своей стороны сказать что знаю две ситуации разрушения приводов. одну видел лично. причина одна и та же - долбодяты любят поглядеть как станок по е-стопу останавливается.. а че прикольно так.. когда тонн 10 тока шо не подпрыгивают... На одном станке лопнула ШВП, миллиметров 60 в диаметре.. на втором оборвало вал сервы на чет в районе 3квт.. ремни в обоих случаях целые....nkp писал(а):один раз мы устроили такое
По самим ремням - приводные ремни лично я встречал двух видов - с кевларовым (или его производными) кордом. или со стальными тросиками вместо корда.. растянуть тот или другой - лично я не представляю как..
Опыт - это когда на смену вопросам: "Что? Где? Когда? Как? Почему?" Приходит единственный вопрос: "Нахрена?"
==========================================
фрезерная и токарная обработка на станках с чпу.
Резка, гибка, сварка и порошковая окраса.
==========================================
фрезерная и токарная обработка на станках с чпу.
Резка, гибка, сварка и порошковая окраса.
-
proenz0
- Кандидат
- Сообщения: 66
- Зарегистрирован: 12 янв 2018, 06:39
- Репутация: -2
- Настоящее имя: Придворный Андрей
- Контактная информация:
Re: Фрезерный станок ЧПУ 3000х1500 по черным металлам
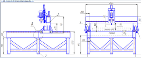
Решил оживить тему) Чертежи подверглись серьезной переработке. Отказались от профильной трубы, вместо нее будут сварные короба из 20мм стали. Само собой все будет отжигаться и строгаться и в процессе сборки и в собранном виде. Ну вообщем увидите сами) Жду дельных советов по доработке конструкции)
- frezeryga
- Почётный участник

- Сообщения: 13712
- Зарегистрирован: 18 авг 2013, 16:08
- Репутация: 5069
- Откуда: Жуковский
- Контактная информация:
Re: Фрезерный станок ЧПУ 3000х1500 по черным металлам
Это станок по дереву. Дюраль по немногу максимум.
email frezeryga@yandex.ru
instagram https://www.instagram.com/frezeryga
telegram https://t.me/md_cnc_frezeryga https://t.me/frezeryga
instagram https://www.instagram.com/frezeryga
telegram https://t.me/md_cnc_frezeryga https://t.me/frezeryga