600х400х120 открытый проект
- frezeryga
- Почётный участник

- Сообщения: 13713
- Зарегистрирован: 18 авг 2013, 16:08
- Репутация: 5069
- Откуда: Жуковский
- Контактная информация:
Re: 400х300х100 открытый проект
Да надобы.
email frezeryga@yandex.ru
instagram https://www.instagram.com/frezeryga
telegram https://t.me/md_cnc_frezeryga https://t.me/frezeryga
instagram https://www.instagram.com/frezeryga
telegram https://t.me/md_cnc_frezeryga https://t.me/frezeryga
- frezeryga
- Почётный участник

- Сообщения: 13713
- Зарегистрирован: 18 авг 2013, 16:08
- Репутация: 5069
- Откуда: Жуковский
- Контактная информация:
Re: 400х300х100 открытый проект
Блин рендеры там красивые. Пока небуду. Кстати там в архиве теперь расшарен проект примитивного портальника 2х винтового с полем 1200х600. Но он пока в непотребном виде но смысл понятен.
email frezeryga@yandex.ru
instagram https://www.instagram.com/frezeryga
telegram https://t.me/md_cnc_frezeryga https://t.me/frezeryga
instagram https://www.instagram.com/frezeryga
telegram https://t.me/md_cnc_frezeryga https://t.me/frezeryga
-
Mehanik77
- Новичок
- Сообщения: 16
- Зарегистрирован: 19 янв 2018, 23:24
- Репутация: 0
- Настоящее имя: Анатолий
- Контактная информация:
Re: 400х300х100 открытый проект
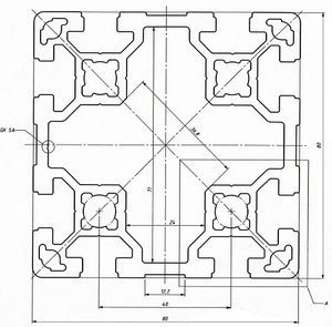
Всем добрый день,нашёл усебя профиль 80*80 с такими параметрами(фото). Прошу совета,можно его использовать или..... 4,85 кг в 1 метре
- frezeryga
- Почётный участник

- Сообщения: 13713
- Зарегистрирован: 18 авг 2013, 16:08
- Репутация: 5069
- Откуда: Жуковский
- Контактная информация:
Re: 400х300х100 открытый проект
Не желательно. Слишком тонкий. Жесткость пострадает.
email frezeryga@yandex.ru
instagram https://www.instagram.com/frezeryga
telegram https://t.me/md_cnc_frezeryga https://t.me/frezeryga
instagram https://www.instagram.com/frezeryga
telegram https://t.me/md_cnc_frezeryga https://t.me/frezeryga
-
Mehanik77
- Новичок
- Сообщения: 16
- Зарегистрирован: 19 янв 2018, 23:24
- Репутация: 0
- Настоящее имя: Анатолий
- Контактная информация:
Re: 400х300х100 открытый проект
Искать 7,85кг /м.п?
- frezeryga
- Почётный участник

- Сообщения: 13713
- Зарегистрирован: 18 авг 2013, 16:08
- Репутация: 5069
- Откуда: Жуковский
- Контактная информация:
Re: 400х300х100 открытый проект
Под какой проект интересует? Сейчас в россии ничего годного нет. В зетеке вроде как профиля больше нету. Потому тока китайский тащить.
email frezeryga@yandex.ru
instagram https://www.instagram.com/frezeryga
telegram https://t.me/md_cnc_frezeryga https://t.me/frezeryga
instagram https://www.instagram.com/frezeryga
telegram https://t.me/md_cnc_frezeryga https://t.me/frezeryga
-
Mehanik77
- Новичок
- Сообщения: 16
- Зарегистрирован: 19 янв 2018, 23:24
- Репутация: 0
- Настоящее имя: Анатолий
- Контактная информация:
Re: 400х300х100 открытый проект
Выбираю пока между двумя А-64 и А-43. Есть перспектива работы с деревом и фанерой, с последующим использованием под алюм. Сам жыву в Украине. С работой туго(сам механик) вот решил реализовать себя таким образом.Тема очень интересная, обречена на успех. Вопросов по ходу будет масса, так что прошу помочь по мере их поступления. На данном этапе занимаюсь поиском профиля. 
- frezeryga
- Почётный участник

- Сообщения: 13713
- Зарегистрирован: 18 авг 2013, 16:08
- Репутация: 5069
- Откуда: Жуковский
- Контактная информация:
Re: 400х300х100 открытый проект
На А43 у меня есть уже торцованые. Вопрос тока в доставке. Также в белоруссии продают неплохой профиль.
email frezeryga@yandex.ru
instagram https://www.instagram.com/frezeryga
telegram https://t.me/md_cnc_frezeryga https://t.me/frezeryga
instagram https://www.instagram.com/frezeryga
telegram https://t.me/md_cnc_frezeryga https://t.me/frezeryga
-
MGG
- Мастер
- Сообщения: 3673
- Зарегистрирован: 08 фев 2016, 16:33
- Репутация: 1010
- Настоящее имя: Манн Геннадий Геннадьевич
- Откуда: Москва
- Контактная информация:
Re: 400х300х100 открытый проект
У вас там профиль item можно по адекватным ценам купить.
http://www.cnc-club.ru/forum/viewtopic. ... 76#p304076 Поставки оборудования для ваших станков
https://www.instagram.com/dtw.moscow/
dtw.moscow@gmail.com
https://www.instagram.com/dtw.moscow/
dtw.moscow@gmail.com
-
Mehanik77
- Новичок
- Сообщения: 16
- Зарегистрирован: 19 янв 2018, 23:24
- Репутация: 0
- Настоящее имя: Анатолий
- Контактная информация:
Re: 400х300х100 открытый проект
нашел фирму- item профиль 80*80 усленый 336 евро 6 метров(+20 пдв)). каталог на обозрение кину
- Вложения
-
- ITEM_комплексный_каталог_2014_ru.pdf
- (27.16 МБ) 318 скачиваний
-
Mehanik77
- Новичок
- Сообщения: 16
- Зарегистрирован: 19 янв 2018, 23:24
- Репутация: 0
- Настоящее имя: Анатолий
- Контактная информация:
Re: 400х300х100 открытый проект
Во сколько оцениваешь и откуда доставку делать надо?frezeryga писал(а):На А43 у меня есть уже торцованые. Вопрос тока в доставке. Также в белоруссии продают неплохой профиль.
- frezeryga
- Почётный участник

- Сообщения: 13713
- Зарегистрирован: 18 авг 2013, 16:08
- Репутация: 5069
- Откуда: Жуковский
- Контактная информация:
Re: 400х300х100 открытый проект
Хорошая цена и профиль фирмовый. Мой дороже выйдет за метр. Берите итем.
email frezeryga@yandex.ru
instagram https://www.instagram.com/frezeryga
telegram https://t.me/md_cnc_frezeryga https://t.me/frezeryga
instagram https://www.instagram.com/frezeryga
telegram https://t.me/md_cnc_frezeryga https://t.me/frezeryga
- sima8520
- Почётный участник

- Сообщения: 4510
- Зарегистрирован: 24 ноя 2016, 23:35
- Репутация: 1617
- Настоящее имя: Илья
- Откуда: Беларусь, Гомель
- Контактная информация:
Re: 400х300х100 открытый проект
ага, хочу на днях заехать к ним в гости, посмотреть да подержать в руках качественную комплектуху для ЧПУ.frezeryga писал(а):Также в белоруссии продают неплохой профиль.
- shalek
- Почётный участник

- Сообщения: 3023
- Зарегистрирован: 25 авг 2014, 10:40
- Репутация: 2583
- Настоящее имя: Александр
- Откуда: РБ Бобруйск
- Контактная информация:
Re: 400х300х100 открытый проект
Мне когда ценник на одну каретку 15 размера Томсон сказали, то желание не только слышать о ней, но и видеть пропало.sima8520 писал(а):посмотреть да подержать в руках качественную комплектуху для ЧПУ.
Если ты не можешь решить проблему, значит это не твоя проблема!
Мой канал на YouTube: YouTube
ЧПУ "Бобр" 600x500 мм
shalek64@gmail.com
Мой канал на YouTube: YouTube
ЧПУ "Бобр" 600x500 мм
shalek64@gmail.com
- sima8520
- Почётный участник

- Сообщения: 4510
- Зарегистрирован: 24 ноя 2016, 23:35
- Репутация: 1617
- Настоящее имя: Илья
- Откуда: Беларусь, Гомель
- Контактная информация:
Re: 400х300х100 открытый проект
Ценники я их знаю, не знаю только за что столько) Вот и хочу пощупать
- frezeryga
- Почётный участник

- Сообщения: 13713
- Зарегистрирован: 18 авг 2013, 16:08
- Репутация: 5069
- Откуда: Жуковский
- Контактная информация:
Re: 400х300х100 открытый проект
В аноде.
email frezeryga@yandex.ru
instagram https://www.instagram.com/frezeryga
telegram https://t.me/md_cnc_frezeryga https://t.me/frezeryga
instagram https://www.instagram.com/frezeryga
telegram https://t.me/md_cnc_frezeryga https://t.me/frezeryga
- inFamous
- Мастер
- Сообщения: 801
- Зарегистрирован: 04 янв 2018, 15:33
- Репутация: 278
- Контактная информация:
Re: 400х300х100 открытый проект
Нормальный профиль. Сам купил на маленький станок такой, вполне себе годный. Потому что за цену профиля потолще уже стоит задуматься о замене профиля плитой дюраля. А разница в весе там достигается за счет не тонкости стенок(они там такие же), а за счет облегчения в ушах, да резьба там под М12 (что по мне как раз норм, М8 сопливый винт для крепежа серьезного). Вот и вся разница.Mehanik77 писал(а):Выбираю пока между двумя А-64 и А-43. Есть перспектива работы с деревом и фанерой, с последующим использованием под алюм. Сам жыву в Украине. С работой туго(сам механик) вот решил реализовать себя таким образом.Тема очень интересная, обречена на успех. Вопросов по ходу будет масса, так что прошу помочь по мере их поступления. На данном этапе занимаюсь поиском профиля.
- frezeryga
- Почётный участник

- Сообщения: 13713
- Зарегистрирован: 18 авг 2013, 16:08
- Репутация: 5069
- Откуда: Жуковский
- Контактная информация:
Re: 400х300х100 открытый проект
с тонкими профилями уже проходил эти грабли. толстый нормальный профиль при цене теже 100 евро за метр на балку портала выйдет теже 6тр а теперь покажите кто мне за эти деньги 4 плиты хотябы 20мм фрезернет по кругу.
если бы было все так легко и просто то я бы уже давно так сделал. а пока для подобных станков в соотношении цена результат рулит профиль.
если бы было все так легко и просто то я бы уже давно так сделал. а пока для подобных станков в соотношении цена результат рулит профиль.
email frezeryga@yandex.ru
instagram https://www.instagram.com/frezeryga
telegram https://t.me/md_cnc_frezeryga https://t.me/frezeryga
instagram https://www.instagram.com/frezeryga
telegram https://t.me/md_cnc_frezeryga https://t.me/frezeryga
- inFamous
- Мастер
- Сообщения: 801
- Зарегистрирован: 04 янв 2018, 15:33
- Репутация: 278
- Контактная информация:
Re: 400х300х100 открытый проект
А теперь сравниваем курс евро в Украине, и видим вот что - профиля нужно 2 метра, я за мелкий станок сейчас говорю, тот что халявный, 200 евро равно 7000 грн, 1 кг Д16Т стоит 150-160 грн, это примерно 43-46 кг дюраля (лист примерно 1200*620*20), и вы мне таки хотите сказать, что делать балки из такого дорогого профиля дешевле, чем перепроектировать толково это под балки из листового металла? Я даже не знаю, о чем тут спорить. И да, у меня свой фрезер есть, если что, но фрезернуть по плоскостям плиты даже под заказ здесь не очень то и дорого.
И чисто с точки зрения прочности - там не та разница, чтобы в три раза дороже профиль брать, чем тот, что 4 кг в метре, как инженер расчетчик по образованию вам говорю. Считал я эти профили в своё время в Ansys Workbench, разной формы, толщины, и сплава.
И чисто с точки зрения прочности - там не та разница, чтобы в три раза дороже профиль брать, чем тот, что 4 кг в метре, как инженер расчетчик по образованию вам говорю. Считал я эти профили в своё время в Ansys Workbench, разной формы, толщины, и сплава.
Последний раз редактировалось inFamous 25 янв 2018, 01:39, всего редактировалось 1 раз.
- frezeryga
- Почётный участник

- Сообщения: 13713
- Зарегистрирован: 18 авг 2013, 16:08
- Репутация: 5069
- Откуда: Жуковский
- Контактная информация:
Re: 400х300х100 открытый проект
ну я не в украине живу и считаю исходя из своих реалий. у меня нет халявной фрезеровки и то что я делаю сам на своих станках тоже не халявное потому я не готов за 6тр делать балку из плит с материалом. если есть свой станок и вагон времени то конечно луше сделать из плит. я свой первый станок тоже из плит делал.
email frezeryga@yandex.ru
instagram https://www.instagram.com/frezeryga
telegram https://t.me/md_cnc_frezeryga https://t.me/frezeryga
instagram https://www.instagram.com/frezeryga
telegram https://t.me/md_cnc_frezeryga https://t.me/frezeryga