Квазиморда писал(а):Посадочное место хомута на мой взгляд излишне указывать допуск.
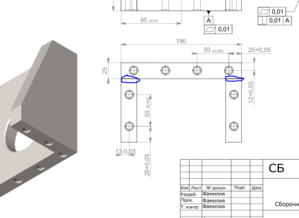
К нему у меня как-раз очень жесткие допуски на круглость, отсутствие конуса, параллельность базовой поверхности.
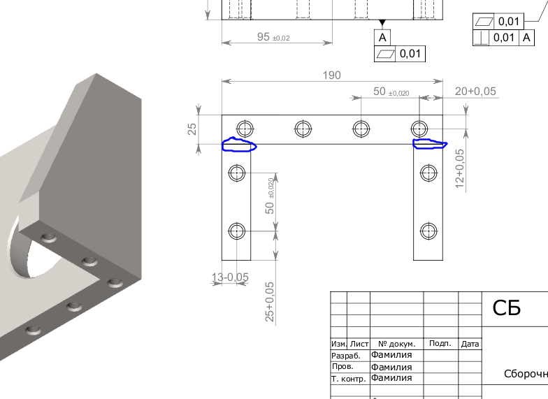
Квазиморда писал(а):Отверстие с резьбой, место стяжки хомута: фаска скорее всего должна быть со стороны болта, а не на резьбе.
С этой стороны тоже нужно, а изнутри я даже не знаю, как зенковкой 14мм залезть через отверстие 12,5мм. Но в чем то Вы правы, поэтому "заглубил" сверление отверстия 12,5мм, чтоб немного и вторую половину засверлило.
aegis, переделал по Вашим рекомендациям. Сейчас есть замечания?
alexg-nn писал(а):mhael, если чертёж делался для учебных целей, то советую всё же учиться правильному оформлению по ЕСКД.
Если же на завод, то понять поймут, но тоже побурчат.
Чертеж на изготовление, но не на завод, частнику. Поэтому там врядли посмотрят на рамку и шапку по ГОСТу.
alexg-nn писал(а): сделал бы местный разрез для выявления отверстий в нижней части хомута и указал бы размеры на разрезе, а не с торца. Также поступил бы и с верхними отверстиями.
Солид на отрез отказывается на тех видах, о которых Вы говорите, выделять именно отверстия для проставления их размеров. Если делать так, то придется вручную.
alexg-nn писал(а): указал бы требования к неуказанным допускам и шероховатостям, проставил бы знак неуказанной шероховатости в правом верхнем углу чертежа.
Эх, знал бы я какие требования указать

У меня требование только к базе и к расточке. Ну и к крепежным отверстиям в базе. А к остальным поверхностям - там вообще по-большому счету пофигу, хоть литье без обработки.
alexg-nn писал(а):справочные размеры указывал бы со звёздочкой и добавил об этом запись в технические требования чертежа.
Это какие размеры?
alexg-nn писал(а):избавился от лишних видов. На вскидку для этой детали хватило бы и трёх.
Согласен. Но тогда бы пришлось делать кучу вырывов детали. Может со временем и с опытом так и буду делать, а пока так мне самому проще. Но замечание правильное в принципе.
Переделанный.
P.S. Кстати кто такое и за сколько бы сделал? Материал - сталь Ст3 например.