ЧПУ станки из алюминиевого "аркообразного"профиля CNCSAM

Фрезерные и гравировальные станки для обработки мягких материалов (дерево, пластики, мягкие металлы).
Аватара пользователя
CNC-Logic
Мастер
Сообщения: 1560
Зарегистрирован: 14 мар 2012, 03:40
Репутация: 815
Настоящее имя: Евгений
Откуда: г.Новосибирск
Контактная информация:

ЧПУ станки из алюминиевого "аркообразного"профиля CNCSAM

Сообщение CNC-Logic »

Постоянно читаю форум и пришел к выводу что нужно попробовать постепенно по мере времени и возможностей изготовить серию ЧПУ станков из ихнего "аркообразного" профиля. Предварительно звонил им и говорил о своём замысле, мне сказали что они против. Тупого копирования ихних конструкций не будет. Хотя конечно же ту же станину вряд ли получится как то сильно видоизменить, а вот над остальными узлами я крепко подумаю, пока есть время и ничего еще не куплено. Делать буду медленно, так как в общем то хватает работы по тому что есть сейчас. Это скажем так проект 2018 года.

Что совершенно точно будет в этих станках?:

- станину вряд ли получится сделать какой то хитрой и уникальной. потому будет практически такая же как у них
- 15мм профильные рельсы по всем станкам.
- начиная от поля 600*400 - 2 ШВП винта по длинной оси.

Пока на повестке дня стоит несколько вопросов:

Из чего делать портальную балку? Вариантов аж три штуки в этот раз.
- аркообразный профиль цнцсам
2017-08-09 19-44-42.JPG (2969 просмотров) <a class='original' href='./download/file.php?id=132466&mode=view' target=_blank>Загрузить оригинал (107.56 КБ)</a>
- коробчатый профиль который использую сейчас 100*150*стенка 6 мм
Безымянный.png (2969 просмотров) <a class='original' href='./download/file.php?id=132467&mode=view' target=_blank>Загрузить оригинал (180.42 КБ)</a>
- что то другое что ненужно выравнивать по плоскости

-----------------------------------------------------------------------------------------------------------
Также рассматриваю вопрос о защите гармошками осей X и Z. ШВП длинной оси Y скорее всего будут под профилем рабстола - потому её защищать не нужно. Пока присматриваюсь кто чем торгует в плане защиты. Ленточную защиту не рассматриваю.

Могу обрадовать сдешних критиков, это как раз та тема где я готов послушать всех, конечно если у "всех" есть желание высказываться.
Аватара пользователя
frezeryga
Почётный участник
Почётный участник
Сообщения: 13712
Зарегистрирован: 18 авг 2013, 16:08
Репутация: 5069
Откуда: Жуковский
Контактная информация:

Re: ЧПУ станки из алюминиевого "аркообразного"профиля CNCSAM

Сообщение frezeryga »

Будет неплохо если станина будет из их профиля а портал из того квадратного что сейчас используешь. Мне досих пор не понятно как они скручивают профиля станины.
kupidon
Кандидат
Сообщения: 77
Зарегистрирован: 10 окт 2016, 10:02
Репутация: 19
Настоящее имя: Александр
Контактная информация:

Re: ЧПУ станки из алюминиевого "аркообразного"профиля CNCSAM

Сообщение kupidon »

CNC-Logic писал(а):Предварительно звонил им и говорил о своём замысле, мне сказали что они против.
В смысле купить у них готовый профиль?
Они против чего именно?
Аватара пользователя
CNC-Logic
Мастер
Сообщения: 1560
Зарегистрирован: 14 мар 2012, 03:40
Репутация: 815
Настоящее имя: Евгений
Откуда: г.Новосибирск
Контактная информация:

Re: ЧПУ станки из алюминиевого "аркообразного"профиля CNCSAM

Сообщение CNC-Logic »

kupidon писал(а):В смысле купить у них готовый профиль?
Они против чего именно?
делать из ихнего профиля свои станки на реализацию. помню тут на форуме были мясорубки по авторским правам.
Аватара пользователя
frezeryga
Почётный участник
Почётный участник
Сообщения: 13712
Зарегистрирован: 18 авг 2013, 16:08
Репутация: 5069
Откуда: Жуковский
Контактная информация:

Re: ЧПУ станки из алюминиевого "аркообразного"профиля CNCSAM

Сообщение frezeryga »

Так они вообще против какого либо коммерческого использования их профиля? Или они против только конструкции аналогичной их?
Аватара пользователя
CNC-Logic
Мастер
Сообщения: 1560
Зарегистрирован: 14 мар 2012, 03:40
Репутация: 815
Настоящее имя: Евгений
Откуда: г.Новосибирск
Контактная информация:

Re: ЧПУ станки из алюминиевого "аркообразного"профиля CNCSAM

Сообщение CNC-Logic »

вопрос был очень простой: делать из ихнего профиля станки со своим конструктивом - они не против этого. Просто получаются две существенно разные вещи: одно дело купить авторский профиль сделать станок и потихому на нём пилить, другое дело реализация. Вот чтобы дальнейших конфликтов нигде не было - решил это обговорить. Мало ли...
SVP
Мастер
Сообщения: 6140
Зарегистрирован: 19 дек 2012, 15:49
Репутация: 884
Откуда: Москва
Контактная информация:

Re: ЧПУ станки из алюминиевого "аркообразного"профиля CNCSAM

Сообщение SVP »

CNC-Logic писал(а):вопрос был очень простой: делать из ихнего профиля станки со своим конструктивом - они не против этого. Просто получаются две существенно разные вещи: одно дело купить авторский профиль сделать станок и потихому на нём пилить, другое дело реализация. Вот чтобы дальнейших конфликтов нигде не было - решил это обговорить. Мало ли...
Т.е. продав профиль они хотят как-то контролировать то, что ты с ним потом будешь делать ?
Замашки как у страдивари у людей, не иначе. Лечиться им надо как по мне.
И да, лучше, конечно, у "таких" ничего не покупать и дел с ними не иметь.

ЗЫ. Да яб в жопу целовал тех, кто платит за профиль и из него что-то делает серийно.
Этож золотое дно. Профиля при наличии фильеры можно скоко угодно наделать...
А форсить людей делать свой профиль... это мягко говоря странно

ЗЫЫ. Нет никакого "авторского" профиля. Забудьте.
Аватара пользователя
frezeryga
Почётный участник
Почётный участник
Сообщения: 13712
Зарегистрирован: 18 авг 2013, 16:08
Репутация: 5069
Откуда: Жуковский
Контактная информация:

Re: ЧПУ станки из алюминиевого "аркообразного"профиля CNCSAM

Сообщение frezeryga »

Дело в том что их профиль заточен под конкретные способы его использования и придумать чтото принципиально другое не выйдет.
Аватара пользователя
CNC-Logic
Мастер
Сообщения: 1560
Зарегистрирован: 14 мар 2012, 03:40
Репутация: 815
Настоящее имя: Евгений
Откуда: г.Новосибирск
Контактная информация:

Re: ЧПУ станки из алюминиевого "аркообразного"профиля CNCSAM

Сообщение CNC-Logic »

SVP писал(а):Т.е. продав профиль они хотят как-то контролировать то, что ты с ним потом будешь делать ?
Замашки как у страдивари у людей, не иначе. Лечиться им надо как по мне.
И да, лучше, конечно, у "таких" ничего не покупать и дел с ними не иметь.

ЗЫ. Да яб в жопу целовал тех, кто платит за профиль и из него что-то делает серийно.
Этож золотое дно. Профиля при наличии фильеры можно скоко угодно наделать...
А форсить людей делать свой профиль... это мягко говоря странно

ЗЫЫ. Нет никакого "авторского" профиля. Забудьте.
Возможно я чего то недоговил. Скорее всего. Контролировать они точно ничего не хотели, даж не пытались. Это я из вежливости сам пошел на контакт и поинтересовался. Так что всё абсолютно нормально. Лечиться никому не надо.
Аватара пользователя
ultrus
Мастер
Сообщения: 2039
Зарегистрирован: 09 апр 2013, 05:42
Репутация: 1329
Настоящее имя: Юрий
Откуда: Воронеж
Контактная информация:

Re: ЧПУ станки из алюминиевого "аркообразного"профиля CNCSAM

Сообщение ultrus »

CNC-Logic писал(а):что то другое что ненужно выравнивать по плоскости
А ты уверен, что профиль CNCSAM и этот прямоугольный который, идеальные и их не надо ровнять?
Если продавцы не говорят об их кривизне, то это совсем не значит что они не кривые. ;)
Я когда узнал, что такое автоколлиматор, жизнь себе сломал. Нету в этом мире ничего ровного. :cry:
А что касается экструдированного алюминиевого профиля, то тут вообще лотерея. И даже после фрезеровки не факт, что всё будет чики-пуки. Не зря же шлифовальные станки придумали...

Вот последний пример. Купил у Menny1112 14 кусков по 3 метра Т-профиля на столы, нарезал 20 заготовок и отдал на торцовку и сверловку с цековкой.
Так вот, 4 штуки оказались с винтом 0,6-0,8 мм на длине 800 мм, Если 16 штук крепили боковыми прижимами на столе, то эти пришлось сверху притягивать.
С Т-профилем не страшно, его всё равно к столу прикручивать и ровнять. Примерно то же самое было с китайским профилем 80х160 мм.
Теперь я на любом профиле плоскости прогоняю.
"Если хочешь сделать что-то хорошо, сделай это сам."
Фердинанд Порше
Аватара пользователя
CNC-Logic
Мастер
Сообщения: 1560
Зарегистрирован: 14 мар 2012, 03:40
Репутация: 815
Настоящее имя: Евгений
Откуда: г.Новосибирск
Контактная информация:

Re: ЧПУ станки из алюминиевого "аркообразного"профиля CNCSAM

Сообщение CNC-Logic »

ultrus

Честно скажу что не уверен :) Но коробчатый профиль я могу сам лично проконтролировать, потому что его продают в 40км от меня, а аркообразный могу попросить чтобы проконтролировали - у них есть на чём это делать. На худой конец если самовцы поставят совсем прям "винт" - попрошу чтобы поменяли.
Опасаться вроде бы пока нечего.
Аватара пользователя
frezeryga
Почётный участник
Почётный участник
Сообщения: 13712
Зарегистрирован: 18 авг 2013, 16:08
Репутация: 5069
Откуда: Жуковский
Контактная информация:

Re: ЧПУ станки из алюминиевого "аркообразного"профиля CNCSAM

Сообщение frezeryga »

Вот я изобретал по мотивам этого профиля свой вариант. Изначально для вектроника рисовал они там тоже думают о подобном. В теме вектроника свой вариант показывали.
Вложения
2.JPG (2837 просмотров) <a class='original' href='./download/file.php?id=132486&mode=view' target=_blank>Загрузить оригинал (372.61 КБ)</a>
Аватара пользователя
CNC-Logic
Мастер
Сообщения: 1560
Зарегистрирован: 14 мар 2012, 03:40
Репутация: 815
Настоящее имя: Евгений
Откуда: г.Новосибирск
Контактная информация:

Re: ЧПУ станки из алюминиевого "аркообразного"профиля CNCSAM

Сообщение CNC-Logic »

frezeryga писал(а):Вот я изобретал по мотивам этого профиля свой вариант. Изначально для вектроника рисовал они там тоже думают о подобном. В теме вектроника свой вариант показывали.
Думаю для такого случая не грех создать отдельную тему, где каждый выскажет что думает по этому профилю.
Аватара пользователя
frezeryga
Почётный участник
Почётный участник
Сообщения: 13712
Зарегистрирован: 18 авг 2013, 16:08
Репутация: 5069
Откуда: Жуковский
Контактная информация:

Re: ЧПУ станки из алюминиевого "аркообразного"профиля CNCSAM

Сообщение frezeryga »

Да это так пока развлечения. Мне такой профиль пока не особо интересен. Себе я хочу такой http://www.cnc-club.ru/forum/viewtopic. ... 80#p419942.
Аватара пользователя
sima8520
Почётный участник
Почётный участник
Сообщения: 4509
Зарегистрирован: 24 ноя 2016, 23:35
Репутация: 1617
Настоящее имя: Илья
Откуда: Беларусь, Гомель
Контактная информация:

Re: ЧПУ станки из алюминиевого "аркообразного"профиля CNCSAM

Сообщение sima8520 »

Макс, ты бы хоть размеры указал, не понятно какая ширина, какой паз
Аватара пользователя
frezeryga
Почётный участник
Почётный участник
Сообщения: 13712
Зарегистрирован: 18 авг 2013, 16:08
Репутация: 5069
Откуда: Жуковский
Контактная информация:

Re: ЧПУ станки из алюминиевого "аркообразного"профиля CNCSAM

Сообщение frezeryga »

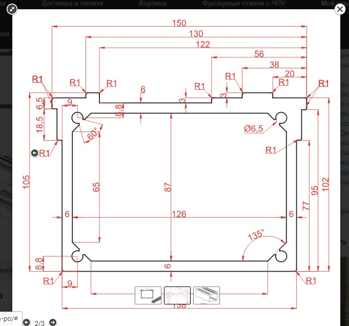
Габарит 160х70 паз 10
Аватара пользователя
CNC-Logic
Мастер
Сообщения: 1560
Зарегистрирован: 14 мар 2012, 03:40
Репутация: 815
Настоящее имя: Евгений
Откуда: г.Новосибирск
Контактная информация:

Re: ЧПУ станки из алюминиевого "аркообразного"профиля CNCSAM

Сообщение CNC-Logic »

frezeryga писал(а):Да это так пока развлечения. Мне такой профиль пока не особо интересен. Себе я хочу такой http://www.cnc-club.ru/forum/viewtopic. ... 80#p419942.
Вот всё как всегда: скажу вежливо - не поймут, или сделают вид что не поймут. Скажу грубо: разрастётся срач со семи вытекающими.

Ненужно в чужой теме пытаться обсуждать свой профиль. Это некрасиво.
sashaK
Опытный
Сообщения: 144
Зарегистрирован: 11 окт 2015, 12:18
Репутация: 10
Настоящее имя: Александр
Откуда: Россия: Екатеринбург, Новоуральск
Контактная информация:

Re: ЧПУ станки из алюминиевого "аркообразного"профиля CNCSAM

Сообщение sashaK »

Судя по аватаркам, ultrus зашёл покормить котят. :)
Никого не хотел обидеть, просто глаз выципил лишнюю из набора.
Аватара пользователя
MX_Master
Мастер
Сообщения: 7488
Зарегистрирован: 27 июн 2015, 19:45
Репутация: 3113
Настоящее имя: Михаил
Откуда: Алматы
Контактная информация:

Re: ЧПУ станки из алюминиевого "аркообразного"профиля CNCSAM

Сообщение MX_Master »

Я как-то пытался с профиля cncsam станочек спроектировать. Все плюсы арки мгновенно превращаются в минусы, когда надо выбрать площадки под опоры ШВП.
Кстати, китайские коллеги по части профилей тоже не отстают

https://item.taobao.com/item.htm?id=15463655306
https://item.taobao.com/item.htm?id=45704660078
https://guangzhou-hepan.taobao.com/search.htm?search=y
T1QRvbXgNlXXbZudPa_120549.jpg (2686 просмотров) <a class='original' href='./download/file.php?id=132508&mode=view' target=_blank>Загрузить оригинал (302.14 КБ)</a>
T2RH1TXxpaXXXXXXXX_!!788651415.jpg (2686 просмотров) <a class='original' href='./download/file.php?id=132509&mode=view' target=_blank>Загрузить оригинал (48.05 КБ)</a>
Аватара пользователя
frezeryga
Почётный участник
Почётный участник
Сообщения: 13712
Зарегистрирован: 18 авг 2013, 16:08
Репутация: 5069
Откуда: Жуковский
Контактная информация:

Re: ЧПУ станки из алюминиевого "аркообразного"профиля CNCSAM

Сообщение frezeryga »

Я его не пытаюсь обсуждать просто показал что есть по теме.
Ответить

Вернуться в «Фрезерные станки по дереву и пластикам, гравировальные станки, роутеры»