фрезерный, широкого применения - 1100х700х100
- Василий Владимирович
- Мастер
- Сообщения: 315
- Зарегистрирован: 19 дек 2014, 08:34
- Репутация: 17
- Настоящее имя: Барвинов Василий Владимирович
- Откуда: Московская область, Наро-Фоминский район
- Контактная информация:
фрезерный, широкого применения - 1100х700х100
Описание станка, основные характеристики:
- Портальный станок, со стальным порталом - труба 100х50х5, стальной рамой 80х60х6мм
- по всем осям рельсы 20 мм - Hiwin, каретки все одинаковые, чтобы была замена одна.
- по всем осям привод - рейка шестерня, с натяжителями
- моторы - серво, Kinco - X - 750W/ YиZ - 400W
- редукторы X - 090, с редукцией 1:12
Y и Z - 060, с редукцией 1:12 (еще возможно подредактирую)
Рабочее поле: 1100х700х90 мм
Обрабатываемые материалы: ПВХ, акрил, фанера, текстолит, магкие сплавы цветных металлов
Чертежи, фото, видео станка: внешний вид без "столешницы"
Вот такую планирую раму, из стальной трубы 80х60х6мм
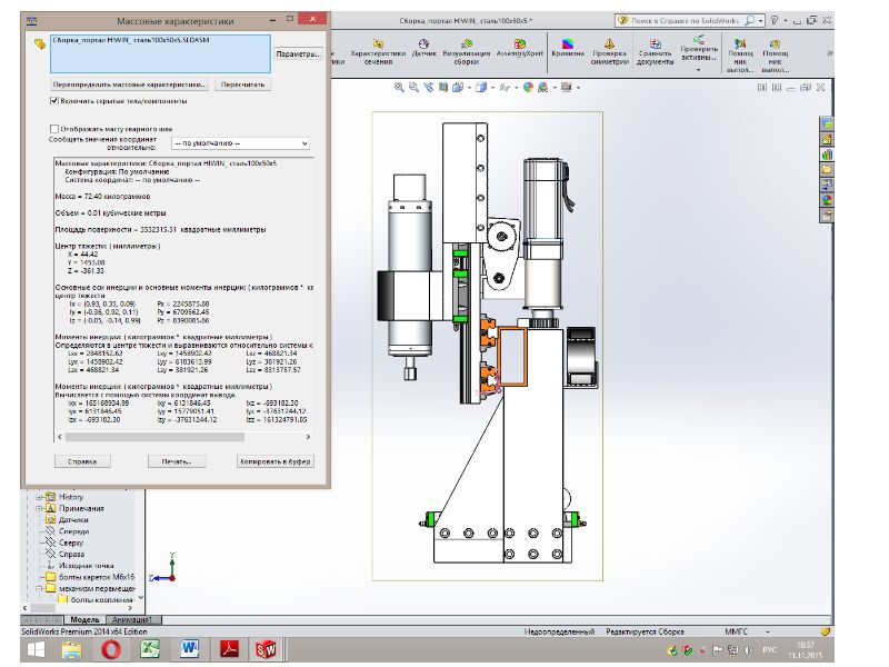
Рама сварная за исключением труб 80х60 с привинчиными к ней направляющими HIWIN 20мм, которые потом болтами крепятся к сварной раме и регулируются. Трубы боковые с проточками под рельс, для выравнивания и упора В центре рамы, такая же труба с проточкой под зубчатую рейку, крепится к раме Крепление портала, состоящего из нижней части, выполненной из трубы 100х50х5, и "башмаков" 80х60, приваренной к ней и проточенными за раз местами под каретки, с упором двух левых кареток. Вот сам портал, вес которого около 72 кг (в сборе с шпиндилем 1,5 кВт, шпиндель будет другой, с водяным охлаждением, китаец)
В нижней части натяжитель, маятникового типа, с подшипниками, (пружину еще не вставлял) вот приводы осей Z и Y - тоже маятниковые натяжители, с пружинами центр масс портала в сборе, у нижней каретки оси Y
Вопросы:
Что скажите в общем?
1. Ставить прямозубые или косозубые рейки? ориентировачно шестерня 30 зубов, модуль реек 1,5
2. Посоветуйте электроннику. Может KFLOP?
3. Хочу станок прикрепить на бетонный фундамент на анкерах. Не сильно ли это жестко будет?
Ориентировочный бюджет:
Еще точно не просчитывал, думаю постараться уложиться в 5-6 тыс. "вечнозеленых"....
- Портальный станок, со стальным порталом - труба 100х50х5, стальной рамой 80х60х6мм
- по всем осям рельсы 20 мм - Hiwin, каретки все одинаковые, чтобы была замена одна.
- по всем осям привод - рейка шестерня, с натяжителями
- моторы - серво, Kinco - X - 750W/ YиZ - 400W
- редукторы X - 090, с редукцией 1:12
Y и Z - 060, с редукцией 1:12 (еще возможно подредактирую)
Рабочее поле: 1100х700х90 мм
Обрабатываемые материалы: ПВХ, акрил, фанера, текстолит, магкие сплавы цветных металлов
Чертежи, фото, видео станка: внешний вид без "столешницы"
Вот такую планирую раму, из стальной трубы 80х60х6мм
Рама сварная за исключением труб 80х60 с привинчиными к ней направляющими HIWIN 20мм, которые потом болтами крепятся к сварной раме и регулируются. Трубы боковые с проточками под рельс, для выравнивания и упора В центре рамы, такая же труба с проточкой под зубчатую рейку, крепится к раме Крепление портала, состоящего из нижней части, выполненной из трубы 100х50х5, и "башмаков" 80х60, приваренной к ней и проточенными за раз местами под каретки, с упором двух левых кареток. Вот сам портал, вес которого около 72 кг (в сборе с шпиндилем 1,5 кВт, шпиндель будет другой, с водяным охлаждением, китаец)
В нижней части натяжитель, маятникового типа, с подшипниками, (пружину еще не вставлял) вот приводы осей Z и Y - тоже маятниковые натяжители, с пружинами центр масс портала в сборе, у нижней каретки оси Y
Вопросы:
Что скажите в общем?
1. Ставить прямозубые или косозубые рейки? ориентировачно шестерня 30 зубов, модуль реек 1,5
2. Посоветуйте электроннику. Может KFLOP?
3. Хочу станок прикрепить на бетонный фундамент на анкерах. Не сильно ли это жестко будет?
Ориентировочный бюджет:
Еще точно не просчитывал, думаю постараться уложиться в 5-6 тыс. "вечнозеленых"....
- Василий Владимирович
- Мастер
- Сообщения: 315
- Зарегистрирован: 19 дек 2014, 08:34
- Репутация: 17
- Настоящее имя: Барвинов Василий Владимирович
- Откуда: Московская область, Наро-Фоминский район
- Контактная информация:
Re: фрезерный, широкого применения - 1100х700х100
Еще вопрос касательно редукторов.
Мне ведь не обязательны редукторы прецизионные? с меньше 5arc-мин. Подойдут ли для моих работ стандартые - менее 10 arc-min?
http://ru.aliexpress.com/store/product/ ... 70762.html
Работы в рекламной сфере, короба пластиковые, буквы светящие, стенды...
А если я на нем захочу вырезать к примеру печатную плату?
И еще вопрос - на счет использования мотора на оси Z - с тормозом. Он нужен? на других осях он нужен?
Мне ведь не обязательны редукторы прецизионные? с меньше 5arc-мин. Подойдут ли для моих работ стандартые - менее 10 arc-min?
http://ru.aliexpress.com/store/product/ ... 70762.html
Работы в рекламной сфере, короба пластиковые, буквы светящие, стенды...
А если я на нем захочу вырезать к примеру печатную плату?
И еще вопрос - на счет использования мотора на оси Z - с тормозом. Он нужен? на других осях он нужен?
- Fisher
- Почётный участник

- Сообщения: 3391
- Зарегистрирован: 09 апр 2012, 12:39
- Репутация: 424
- Откуда: Киров
- Контактная информация:
Re: фрезерный, широкого применения - 1100х700х100
Если шестерни с поджимом, то прямозубые. Модуль можно меньше. Даже лучше меньше.Василий Владимирович писал(а):Ставить прямозубые или косозубые рейки? ориентировачно шестерня 30 зубов, модуль реек 1,5
Почему-бы нет.Василий Владимирович писал(а):Посоветуйте электроннику. Может KFLOP?
"Слишком жестко" - это не для станков.Василий Владимирович писал(а):Хочу станок прикрепить на бетонный фундамент на анкерах. Не сильно ли это жестко будет?
28:1 это, конечно, слишком жестоко.Василий Владимирович писал(а):Мне ведь не обязательны редукторы прецизионные? с меньше 5arc-мин. Подойдут ли для моих работ стандартые - менее 10 arc-min?
http://ru.aliexpress.com/store/product/ ... 70762.html
Работы в рекламной сфере, короба пластиковые, буквы светящие, стенды...
Привод зубчатый по Z? - надо будет чем-то мотору помогать держать. На других необязательно - не те массы.Василий Владимирович писал(а):И еще вопрос - на счет использования мотора на оси Z - с тормозом. Он нужен? на других осях он нужен?
www.cncru.ru - все виды станков с ЧПУ. Комплектующие.
- Лодочник
- Мастер
- Сообщения: 2178
- Зарегистрирован: 10 авг 2012, 05:24
- Репутация: 1835
- Настоящее имя: Олег
- Откуда: г.Королев
- Контактная информация:
Re: фрезерный, широкого применения - 1100х700х100
Помогать не надо, сервы же планируются с редуктором, а вот тормоз обязателен в таком случае. Иначе падать будет после выключения питания.Fisher писал(а):Привод зубчатый по Z? - надо будет чем-то мотору помогать держать. На других необязательно - не те массы.
- Fisher
- Почётный участник

- Сообщения: 3391
- Зарегистрирован: 09 апр 2012, 12:39
- Репутация: 424
- Откуда: Киров
- Контактная информация:
Re: фрезерный, широкого применения - 1100х700х100
Точно. Сервы-же...Лодочник писал(а):Помогать не надо, сервы же планируются с редуктором
www.cncru.ru - все виды станков с ЧПУ. Комплектующие.
- Predator
- Мастер
- Сообщения: 9583
- Зарегистрирован: 18 июл 2013, 18:26
- Репутация: 2531
- Контактная информация:
Re: фрезерный, широкого применения - 1100х700х100
Косозубые тише работают.Василий Владимирович писал(а):Ставить прямозубые или косозубые рейки?
Если есть возможность и средства, то лучше его и ставить.Василий Владимирович писал(а):Может KFLOP?
Уж точно не помешает на оси Z, на другие оси моторы с тормозом не нужны.Василий Владимирович писал(а):на счет использования мотора на оси Z - с тормозом. Он нужен?
А для чего? Достаточно поставить его на виброопоры.Василий Владимирович писал(а):Хочу станок прикрепить на бетонный фундамент на анкерах.
- Василий Владимирович
- Мастер
- Сообщения: 315
- Зарегистрирован: 19 дек 2014, 08:34
- Репутация: 17
- Настоящее имя: Барвинов Василий Владимирович
- Откуда: Московская область, Наро-Фоминский район
- Контактная информация:
Re: фрезерный, широкого применения - 1100х700х100
1.Значит косозубые, насколько я знаю лучше, соответственно с прижимом. Косозубым же прижим лишним не будет? На счет модуля поменьше подумаю.
А скажите, то что модуль 1,0 допустим - это же и зубья мельче, не будут ли быстрее снашиваться рейки?
2.На счет редуктора - там я ссылку выложел, на ней 1:28!Ё... Это не так, у меня планируется 1:12, я там писал ниже.
3.Спасибо за подсказку на счет тормоза на моторе оси Z. Я так и надеялся, поэтому на чертеже поставил только его с тормозом, остальные без тормоза.
4. Станок целиком весить будет чуть больше 200 кг. Его на виброопорах мотылять небудет?
Или в трубы рамы "пяска" насыпать? ((шутка) в каждой шутке есть доля правды..)
...а на счет прецизионности редукторов что-нибудь скажите? Нужно ли прецизионные, или стандартных хватит?
А скажите, то что модуль 1,0 допустим - это же и зубья мельче, не будут ли быстрее снашиваться рейки?
2.На счет редуктора - там я ссылку выложел, на ней 1:28!Ё... Это не так, у меня планируется 1:12, я там писал ниже.
3.Спасибо за подсказку на счет тормоза на моторе оси Z. Я так и надеялся, поэтому на чертеже поставил только его с тормозом, остальные без тормоза.
4. Станок целиком весить будет чуть больше 200 кг. Его на виброопорах мотылять небудет?
Или в трубы рамы "пяска" насыпать? ((шутка) в каждой шутке есть доля правды..)
...а на счет прецизионности редукторов что-нибудь скажите? Нужно ли прецизионные, или стандартных хватит?
- Лодочник
- Мастер
- Сообщения: 2178
- Зарегистрирован: 10 авг 2012, 05:24
- Репутация: 1835
- Настоящее имя: Олег
- Откуда: г.Королев
- Контактная информация:
Re: фрезерный, широкого применения - 1100х700х100
Вот у меня лично такие вопросы:
Зачем для рекламы такой маленький станок?
Зачем такому маленькому станку для рекламы сервоприводы?
За что оси Х серва 750Вт? Она весь станок в узел способна завязать...
Зачем такому маленькому станку рейки? Скорости и на ШВП приличные легко достижимы.
Зачем для рекламы такой маленький станок?
Зачем такому маленькому станку для рекламы сервоприводы?
За что оси Х серва 750Вт? Она весь станок в узел способна завязать...
Зачем такому маленькому станку рейки? Скорости и на ШВП приличные легко достижимы.
- ultrus
- Мастер
- Сообщения: 2039
- Зарегистрирован: 09 апр 2013, 05:42
- Репутация: 1329
- Настоящее имя: Юрий
- Откуда: Воронеж
- Контактная информация:
Re: фрезерный, широкого применения - 1100х700х100
По моему, это как на Камазе таксовать. Получится недофрезер и перероутер.Василий Владимирович писал(а):Что скажите в общем?
Для Ваших целей:
Есть масса бюджетных и сотни раз обкатанных конструкции рекламных станков. Серваки, рейки, редуктора, тормоза, нужны ли они станку с таким маленьким рабочем полем?Василий Владимирович писал(а):Работы в рекламной сфере, короба пластиковые, буквы светящие, стенды...
"Если хочешь сделать что-то хорошо, сделай это сам."
Фердинанд Порше
Фердинанд Порше
- Василий Владимирович
- Мастер
- Сообщения: 315
- Зарегистрирован: 19 дек 2014, 08:34
- Репутация: 17
- Настоящее имя: Барвинов Василий Владимирович
- Откуда: Московская область, Наро-Фоминский район
- Контактная информация:
Re: фрезерный, широкого применения - 1100х700х100
По моему опыту в рекламном бизнесе, станок больших размеров не особо нужен. По крайней мере в 95% случаев. Я думал делать полноформатный, но думаю начинать с такого формата. И меньшезатратно и меньше места. На счет затратности - станок полного формата выходит практически в 2 раза дороже.
Сервоприводы.. ууу.... есть заказы не мелкие, а крупно серийные, немного не из "оперы рекламной". Оооо-очень много резки ПВХ, вспененного...
Станок на сервах, раскрамцает лист, в 2 раза быстрее чем на шаговиках. И рабочие скорости можно смело выше брать, пропусков не будет, и скорости перемещения с ускорениями, ощутимо выше. Ведь так?
На осьХ, можно было бы и поставить 400Вт, но во первых, при весе портала 72-75 кг, чтобы портал перемещался со скоростью и ускорениями, близкими к "нормальным" (нормальными я называю скорость 30м/мин. в холостую, ускорение 1g, которые присущи станкам "Мультикам" 3000 серии . Я видел как они работают, после этого, на китайца на шаговиках, даже смотреть не охота... - и даже 1000 серия быстрее китайцев).
И кроме того, писал производителям в штаты, чтоб дали цифирки.... Уж больно мне понравилось.
Вот расчет на мой портал 72 кг. Как видно из расчетов, момент на двигателе при таких оборотах, близких к номинальным 3000, равен 2,07 Нм, что не обеспечит мотор 400Вт.
Конечно же я несколько завысил на 40% коэф.запаса. Для надежности.
Вот графики зависимости крут.момента от оборотов для данных моторов: Как видно, при таких оборотах мотор 400Вт, не имеет необходимого крутящего момента.
А 750Вт имеет! Это раз.
Второе - я могу конечно поставить редуктор не 1:12, а допустим 1:24, тогда выйду на необходимые для 400Вт моменты, но достигается это при 5000! об/мин! - многовато, не думаете?
Третье - мотор 750 Вт - почемуто будет стоить при покупке на 10 долл. дешевле, чем 400Вт - ..ну я не знаю почему????!!! Но так.
Поставить гибриды, которые по цене отличаются от серв на 15-20%???? Наверно глуповато. Тем более что Характеристики у них не радужные: что с 4 N, что с 8N - добиться требуемого момента можно только на скоростях 600 и 700 об, для каждого из движков.
Плюс еще фактор - гибридные движки, как и шаговики, имеют габариты под редуктор как минимум 090 (который весит в 1,5 раза больше чем 060), и вес практически в 2 раза большый чем (серва - 1,8, с тормозом - 2,3) (гибрид, который и то чахлый для этого станка - 2,5 и 4,0 кг из тех что на графиках)
Соответственно вот наверно и мой ответ. А чем сервы хуже гибридов? разве что ценой на 15-20%?
Если дадите совет как удешевить и не терять производительность станка - я буду искренне рад и благодарен!
Да и еще, я там писал - что для широкого применения, вдруг я буду на нем печатные плата "пачками" резать...
Сервоприводы.. ууу.... есть заказы не мелкие, а крупно серийные, немного не из "оперы рекламной". Оооо-очень много резки ПВХ, вспененного...
Станок на сервах, раскрамцает лист, в 2 раза быстрее чем на шаговиках. И рабочие скорости можно смело выше брать, пропусков не будет, и скорости перемещения с ускорениями, ощутимо выше. Ведь так?
На осьХ, можно было бы и поставить 400Вт, но во первых, при весе портала 72-75 кг, чтобы портал перемещался со скоростью и ускорениями, близкими к "нормальным" (нормальными я называю скорость 30м/мин. в холостую, ускорение 1g, которые присущи станкам "Мультикам" 3000 серии . Я видел как они работают, после этого, на китайца на шаговиках, даже смотреть не охота... - и даже 1000 серия быстрее китайцев).
И кроме того, писал производителям в штаты, чтоб дали цифирки.... Уж больно мне понравилось.
Вот расчет на мой портал 72 кг. Как видно из расчетов, момент на двигателе при таких оборотах, близких к номинальным 3000, равен 2,07 Нм, что не обеспечит мотор 400Вт.
Конечно же я несколько завысил на 40% коэф.запаса. Для надежности.
Вот графики зависимости крут.момента от оборотов для данных моторов: Как видно, при таких оборотах мотор 400Вт, не имеет необходимого крутящего момента.
А 750Вт имеет! Это раз.
Второе - я могу конечно поставить редуктор не 1:12, а допустим 1:24, тогда выйду на необходимые для 400Вт моменты, но достигается это при 5000! об/мин! - многовато, не думаете?
Третье - мотор 750 Вт - почемуто будет стоить при покупке на 10 долл. дешевле, чем 400Вт - ..ну я не знаю почему????!!! Но так.
Поставить гибриды, которые по цене отличаются от серв на 15-20%???? Наверно глуповато. Тем более что Характеристики у них не радужные: что с 4 N, что с 8N - добиться требуемого момента можно только на скоростях 600 и 700 об, для каждого из движков.
Плюс еще фактор - гибридные движки, как и шаговики, имеют габариты под редуктор как минимум 090 (который весит в 1,5 раза больше чем 060), и вес практически в 2 раза большый чем (серва - 1,8, с тормозом - 2,3) (гибрид, который и то чахлый для этого станка - 2,5 и 4,0 кг из тех что на графиках)
Соответственно вот наверно и мой ответ. А чем сервы хуже гибридов? разве что ценой на 15-20%?
Если дадите совет как удешевить и не терять производительность станка - я буду искренне рад и благодарен!
Да и еще, я там писал - что для широкого применения, вдруг я буду на нем печатные плата "пачками" резать...
- Василий Владимирович
- Мастер
- Сообщения: 315
- Зарегистрирован: 19 дек 2014, 08:34
- Репутация: 17
- Настоящее имя: Барвинов Василий Владимирович
- Откуда: Московская область, Наро-Фоминский район
- Контактная информация:
Re: фрезерный, широкого применения - 1100х700х100
Ребят, подскажите по редукторам, если кто сталкивался. Нужны ли прецизионные или достаточно стандартных?
Я там выше ссылку кидал, там есть в таблице на сколько люфтом они отличаются.
И по конструктиву - "мой недоКамаз - перетакси", считаете редукторы в нем лишними? Поставить ремни со шкивами, так выйдет то на то, или напрямую?
Ну напрямую с шаговиками поставить жернючие шаговые, с моментом 28-30N? Думаете будет выход? Или это нормально? Ну китайцы ставят - но я видел как это потом ползает... У жирнючих - резонанс будет на низких оборотах, а на высоких (1500 об.
)упадет момент. Не страшно?
Или считаете следует облегчить конструкцию? Уберу к примеру рейку с оси Z, поставлю ШВП, задеру в небо мотор, плечо у портала будет высоким, качать будет больше. Ведь так?
Уберу с оси Y, поставлю ШВП, что выиграю? Масса увеличится....
Я там выше ссылку кидал, там есть в таблице на сколько люфтом они отличаются.
И по конструктиву - "мой недоКамаз - перетакси", считаете редукторы в нем лишними? Поставить ремни со шкивами, так выйдет то на то, или напрямую?
Ну напрямую с шаговиками поставить жернючие шаговые, с моментом 28-30N? Думаете будет выход? Или это нормально? Ну китайцы ставят - но я видел как это потом ползает... У жирнючих - резонанс будет на низких оборотах, а на высоких (1500 об.
Или считаете следует облегчить конструкцию? Уберу к примеру рейку с оси Z, поставлю ШВП, задеру в небо мотор, плечо у портала будет высоким, качать будет больше. Ведь так?
Уберу с оси Y, поставлю ШВП, что выиграю? Масса увеличится....
- MX_Master
- Мастер
- Сообщения: 7490
- Зарегистрирован: 27 июн 2015, 19:45
- Репутация: 3113
- Настоящее имя: Михаил
- Откуда: Алматы
- Контактная информация:
Re: фрезерный, широкого применения - 1100х700х100
Редуктора прецизионные? Для рекламок-то? Не помню, чтобы в рекламных целях резали с точностью до соток. Десятки тут за глаза. И голых шаговиков 8.5N вам хватит на зуб.рейке. Подберёте режимы опытным путём и трясти не будет. Помню кто-то советовал листовую резину под рейку подложить - вибрации станут меньше
- Василий Владимирович
- Мастер
- Сообщения: 315
- Зарегистрирован: 19 дек 2014, 08:34
- Репутация: 17
- Настоящее имя: Барвинов Василий Владимирович
- Откуда: Московская область, Наро-Фоминский район
- Контактная информация:
Re: фрезерный, широкого применения - 1100х700х100
А вы правы Fisher, модуль поменьше, следовательно и сервы можно поменьше поставить. Точно! Спасибо.
Сейчас сделал расчеты с модулем 1, я немного потеряю в скоростях, но смогу уменьшить мощности моторов, соответственно и вес.
Лодочник - и вы тут тоже свой вклад внесли. СПС. Еще не пересчитывал ось X, персчитаю выложу данные, что получилось.
..во пересчитал: вот кривая момента для двигателя 200 Вт, вроде укладываюсь. Пришлось снизить несколько скорость по оси Х, но я думаю, на мелком станке, я больших скоростей не достигну. Всеже тут главное ускорения. Еще плюс, что все моторы получаются под один тип редуктора - 060!
Следовательно, так как редукторы все с одним передаточным числом, то можно будет взять один для НЗ - это я мыслю в слух...
Во как выручает форум! Одна голова хорошо - а форум лучше....
Сейчас сделал расчеты с модулем 1, я немного потеряю в скоростях, но смогу уменьшить мощности моторов, соответственно и вес.
Лодочник - и вы тут тоже свой вклад внесли. СПС. Еще не пересчитывал ось X, персчитаю выложу данные, что получилось.
..во пересчитал: вот кривая момента для двигателя 200 Вт, вроде укладываюсь. Пришлось снизить несколько скорость по оси Х, но я думаю, на мелком станке, я больших скоростей не достигну. Всеже тут главное ускорения. Еще плюс, что все моторы получаются под один тип редуктора - 060!
Следовательно, так как редукторы все с одним передаточным числом, то можно будет взять один для НЗ - это я мыслю в слух...
Во как выручает форум! Одна голова хорошо - а форум лучше....
- Василий Владимирович
- Мастер
- Сообщения: 315
- Зарегистрирован: 19 дек 2014, 08:34
- Репутация: 17
- Настоящее имя: Барвинов Василий Владимирович
- Откуда: Московская область, Наро-Фоминский район
- Контактная информация:
Re: фрезерный, широкого применения - 1100х700х100
..голых - это без редукторов?MX_Master писал(а):Редуктора прецизионные? Для рекламок-то? Не помню, чтобы в рекламных целях резали с точностью до соток. Десятки тут за глаза. И голых шаговиков 8.5N вам хватит на зуб.рейке. Подберёте режимы опытным путём и трясти не будет. Помню кто-то советовал листовую резину под рейку подложить - вибрации станут меньше
- Василий Владимирович
- Мастер
- Сообщения: 315
- Зарегистрирован: 19 дек 2014, 08:34
- Репутация: 17
- Настоящее имя: Барвинов Василий Владимирович
- Откуда: Московская область, Наро-Фоминский район
- Контактная информация:
Re: фрезерный, широкого применения - 1100х700х100
Вот расчеты и графики с голыми (без редукторов) гибридами Leadshine
Получается, что 8N, сможет вытянуть портал по осиХ, ну при очень низких оборотах - порядка 100!
12N - тянет, и даже график его поподает в данные обороты и момент. Но весят они "мама не горюй" по 5,7 кг!!
Согласен, без редуктора, это не намного больше чем серва с редуктором, и дешевле.
Но ведь станок ползать будет. Ведь так?
Ускорения будут у него нормальные?
А точность будет? Вот вы все говорите, что в рекламном бизнесе точность не нужна, я согласен, когда это касается букв на магазин, размером допустим 20см, а если клише надо вырезать, для печати на пакеты с гербом казино?
Вот это с шаговиками и без редукторов вырежет? А к примеру -я писал выше, если я печатную плату вырезать решил?
Или для этого отдельный гравировальный станок сделать?
Не хотелось бы.
12N - тянет, и даже график его поподает в данные обороты и момент. Но весят они "мама не горюй" по 5,7 кг!!
Согласен, без редуктора, это не намного больше чем серва с редуктором, и дешевле.
Но ведь станок ползать будет. Ведь так?
Ускорения будут у него нормальные?
А точность будет? Вот вы все говорите, что в рекламном бизнесе точность не нужна, я согласен, когда это касается букв на магазин, размером допустим 20см, а если клише надо вырезать, для печати на пакеты с гербом казино?
Вот это с шаговиками и без редукторов вырежет? А к примеру -я писал выше, если я печатную плату вырезать решил?
Или для этого отдельный гравировальный станок сделать?
Не хотелось бы.
- Василий Владимирович
- Мастер
- Сообщения: 315
- Зарегистрирован: 19 дек 2014, 08:34
- Репутация: 17
- Настоящее имя: Барвинов Василий Владимирович
- Откуда: Московская область, Наро-Фоминский район
- Контактная информация:
Re: фрезерный, широкого применения - 1100х700х100
Ну Вы конечно, скажите, что ты Василий, хочешь и конфетку съесть.. и чаю выпить (извените, у нас в Казахстане, чай почитаемый продукт ).
Согласен. Но вот если со стороны посмотреть - стоит поставить сервы и редукторы всеже - или бы вы не стали.
Плюс я еще там писал что много есть работы по резки вспененного ПВХ, а там оч. много проходов, это для форм.
..Не ругайтесь! А понял, что это не рекламные дела.
[youtube]https://www.youtube.com/watch?v=c2e9xDNq-QM[/youtube]
вот пример китайца точащего пеноплен, .. он как будто не проснулся, все ускорения по осям вялые.
А вот еще, ну ведь живее же, не как "дохлый лебедь"
[youtube]https://www.youtube.com/watch?v=voy7EcaF_h4[/youtube]
Согласен. Но вот если со стороны посмотреть - стоит поставить сервы и редукторы всеже - или бы вы не стали.
Плюс я еще там писал что много есть работы по резки вспененного ПВХ, а там оч. много проходов, это для форм.
..Не ругайтесь! А понял, что это не рекламные дела.
[youtube]https://www.youtube.com/watch?v=c2e9xDNq-QM[/youtube]
вот пример китайца точащего пеноплен, .. он как будто не проснулся, все ускорения по осям вялые.
А вот еще, ну ведь живее же, не как "дохлый лебедь"
[youtube]https://www.youtube.com/watch?v=voy7EcaF_h4[/youtube]
- MX_Master
- Мастер
- Сообщения: 7490
- Зарегистрирован: 27 июн 2015, 19:45
- Репутация: 3113
- Настоящее имя: Михаил
- Откуда: Алматы
- Контактная информация:
Re: фрезерный, широкого применения - 1100х700х100
Я не с графика, а с опыта шаговики 8.5N.m советую. 8-ми выводные, с параллельным подключением обмоток. 4 кг мощности )) На рейке 1-го модуля при 48 вольтовом питании в холостую скорость будет до 60 м/мин, микрошаг 1/8. Тащит вес 30 кг. Если запитать нормальным напряжением (до 80 В), думаю, можно и до 100 м/мин. Но при таких скоростях износ рейки на лицо, без постоянной смазки не обойтись. Рабочую подачу больше 5 м/мин не ставлю, т.к. в основном все фрезы меньше 6 мм.
Это, если нужна скорость. А если нужно чуть точнее - скидываете микрошаг на 1/32 хотя бы. Соответственно, подача в 4 раза меньше, но уже можно гравировочки делать, платы вырезать
Это, если нужна скорость. А если нужно чуть точнее - скидываете микрошаг на 1/32 хотя бы. Соответственно, подача в 4 раза меньше, но уже можно гравировочки делать, платы вырезать
- Лодочник
- Мастер
- Сообщения: 2178
- Зарегистрирован: 10 авг 2012, 05:24
- Репутация: 1835
- Настоящее имя: Олег
- Откуда: г.Королев
- Контактная информация:
Re: фрезерный, широкого применения - 1100х700х100
При использовании сервоприводов и приличной стойки ЧПУ- не уверен, т.к. эти позиции составляют значительный процент ценовой составляющей. Увеличение только на трубах(металле) рельсах, рейках.Василий Владимирович писал(а):На счет затратности - станок полного формата выходит практически в 2 раза дороже.
Вряд ли так. Скорость реза зависит от параметров фрезы, выигрыш только на холостых переездах, что на мелких станках не сильно ощутимо.Василий Владимирович писал(а):Станок на сервах, раскрамцает лист, в 2 раза быстрее чем на шаговиках. И рабочие скорости можно смело выше брать, пропусков не будет, и скорости перемещения с ускорениями, ощутимо выше. Ведь так?
Такая скорость на шаговиках и реечном приводе обычное дело. С ускорением не ошиблись?Василий Владимирович писал(а):нормальными я называю скорость 30м/мин. в холостую, ускорение 1g, которые присущи станкам "Мультикам" 3000 серии
Одна из самых неудачных китайских конструкций на мой взгляд. Пример не показательный.Василий Владимирович писал(а):[youtube]https://www.youtube.com/watch?v=c2e9xDNq-QM[/youtube]
вот пример китайца точащего пеноплен, .. он как будто не проснулся, все ускорения по осям вялые
Чтобы видео отображалось в теме, уберите букву s в https, тогда будет так -
Совсем не сверхскоростной станок.Василий Владимирович писал(а): А вот еще, ну ведь живее же, не как "дохлый лебедь"
http://www.youtube.com/watch?v=voy7EcaF_h4
У сервоприводов есть один нюанс - нет четкого положения удержания, в настройках необходим компромис. Поэтому сделать станок качественно отрабатывающий очень мелкие элементы, типа таких
проще на шаговиках
- Predator
- Мастер
- Сообщения: 9583
- Зарегистрирован: 18 июл 2013, 18:26
- Репутация: 2531
- Контактная информация:
Re: фрезерный, широкого применения - 1100х700х100
Тут дело даже не в скоростях, просто серва на 750 Вт весь этот станок в бараний рог свернуть может и даже не подавитсяВасилий Владимирович писал(а):А вы правы Fisher, модуль поменьше, следовательно и сервы можно поменьше поставить.
Сейчас сделал расчеты с модулем 1, я немного потеряю в скоростях.
- Василий Владимирович
- Мастер
- Сообщения: 315
- Зарегистрирован: 19 дек 2014, 08:34
- Репутация: 17
- Настоящее имя: Барвинов Василий Владимирович
- Откуда: Московская область, Наро-Фоминский район
- Контактная информация:
Re: фрезерный, широкого применения - 1100х700х100
Спасибо - раз это практика, тем более у вас такой работает - учту обязательно.!!MX_Master писал(а):Я не с графика, а с опыта шаговики 8.5N.m советую. 8-ми выводные, с параллельным подключением обмоток. 4 кг мощности )) На рейке 1-го модуля при 48 вольтовом питании в холостую скорость будет до 60 м/мин, микрошаг 1/8. Тащит вес 30 кг. Если запитать нормальным напряжением (до 80 В), думаю, можно и до 100 м/мин. Но при таких скоростях износ рейки на лицо, без постоянной смазки не обойтись. Рабочую подачу больше 5 м/мин не ставлю, т.к. в основном все фрезы меньше 6 мм.
Это, если нужна скорость. А если нужно чуть точнее - скидываете микрошаг на 1/32 хотя бы. Соответственно, подача в 4 раза меньше, но уже можно гравировочки делать, платы вырезать